Sau khi cải tạo, ngôi biệt thự với không gian kín và không có kết nối ra sân vườn đã biến thành biệt thự hiện đại 2 tầng mái bằng xanh mát như resort, có thảm thực vật thẳng đứng.
 |
| Biệt thự hiện đại 2 tầng mái bằng này được cải tạo từ một căn biệt thự ở phía Đông ngoại ô TP.HCM. Mục tiêu là biến công trình hiện tại thành biệt thự có không gian mở nhưng vẫn giữ được toàn bộ kết cấu bê tông cũ. Ảnh: biệt thự trước và sau khi cải tạo. |
 |
| Việc tiết kiệm chi phí, khoảng 30% tổng chi phí xây dựng, và tiến độ thi công chính là lợi ích đơn vị thiết kế mang lại cho gia chủ. Do đó, với việc cân đối chi phí, kiến trúc sư có thể thêm các yếu tố mới vào công trình. Ảnh: Mặt bằng chi tiết tầng 1 của biệt thự. |
 |
| Không gian sân vườn của biệt thự trông như resort. |
 |
| Thiết kế mới của biệt thự được tối giản, một hình khối màu trắng với hai bức tường là thực vật thẳng đứng ở mặt trước và mặt sau. Thiết kế này mang lại sự riêng tư cho các phòng ngủ và có các khoảng mở lớn để thông gió tự nhiên nhưng không bị khuất tầm nhìn. |
 |
| Hình ảnh thảm thực vật bao phủ xung quanh biệt thự như “khu vườn thẳng đứng”, nó tạo ra bản sắc riêng cho ngôi nhà. |
 |
| Thiết kế này mang đến sự khác biệt so với các công trình xung quanh. | |
 |
| Ở tầng 1, phòng khách, phòng ăn và nhà bếp được liên thông trong một không gian mở hoàn toàn ra ngoài trời ở ba mặt, mang cả khu vườn vào bên trong ngôi nhà. Hồ bơi và sàn như một phần mở rộng của không gian bên trong. |
 |
| Bàn ăn tràn ngập ánh sáng tự nhiên, tầm nhìn ra sân vườn vô cùng thoáng đãng. |
 |
| Kệ ở khu vực bàn ăn được thiết kế theo hai màu trắng - đen. |
 |
| Nhà bếp cũng có cửa sổ nhìn ra sân vườn. | |
 |
| Cầu thang được bố trí lại để tầng 1 có sự phân bổ không gian tốt hơn và tạo điểm nhấn cho phòng khách với thiết kế bậc nổi. Trên tầng 2, trước đây có 4 phòng ngủ thì nay kiến trúc sư chỉ bố trí 3 phòng ngủ. |
 |
| Cầu thang trở thành điểm nhấn trong không gian phòng khách. |
 |
| Góc thư giãn thú vị dưới gầm cầu thang. | |
 |
| Sàn và hồ bơi như một phần mở rộng của không gian bên trong nhà. |
 |
| Quang cảnh không khác gì một resort. | |
Từ một biệt thự có không gian kín và không có kết nối với sân vườn, kiến trúc sư đã bố cục lại không gian một cách hoàn toàn khác, tăng giá trị và mang lại sự gần gũi với thiên nhiên hơn cho gia chủ.
 |
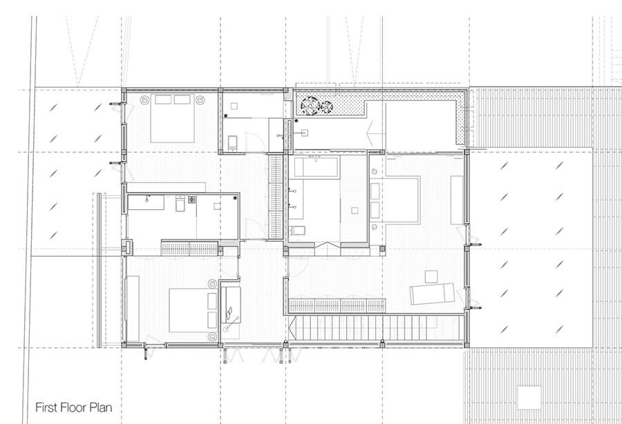
| Mặt bằng chi tiết tầng 2. |
 |
| Phòng vệ sinh trong phòng ngủ chính trên tầng 2. |
 |
| Có bố trí vòi tắm đứng ngoài trời. | |
Link gốc: https://vietnamnet.vn/vn/bat-dong-san/nha-dep/biet-thu-hien-dai-2-tang-mai-bang-nhu-resort-o-khu-nha-giau-tp-hcm-812713.html