![]() |
| Công trình này nằm trên mảnh đất miền Tây miệt vườn, tái hiện lại các chi tiết của kiến trúc truyền thống đồng bằng sông Cửu Long. Chủ sở hữu là một gia đình người Việt gồm ba thế hệ với phong cách sống khác nhau. |
![]() |
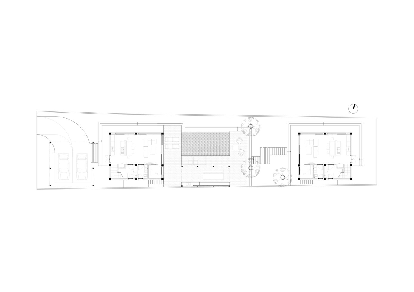
| Nhóm kiến trúc sư chia khu đất thành hai ngôi nhà, với diện tích và chức năng hoàn toàn giống nhau, được nối với nhau bằng một sân trung tâm. |
![]() |
| Trong khi mỗi ngôi nhà mang lại sự riêng tư cho mỗi thành viên thì sân trung tâm với hồ bơi, hiên và bếp ngoài trời là trung tâm “xã hội”, nơi các thành viên trong gia đình tương tác với nhau và tận hưởng các hoạt động ngoài trời. |
![]() ![]() |
| Diện tích xây dựng được giảm đến mức tối thiểu để giữ lại toàn bộ cây xanh hiện có. Mỗi khối đều có một không gian trống được mở tối đa ra khu vườn qua khung kính lớn ở tầng trệt. |
![]() ![]() |
| Điểm nhấn của ngôi nhà đến từ việc sử dụng chất liệu thôn quê dân dã. Trong đó, mái lá cọ được sử dụng như một lớp cách nhiệt bên ngoài, gợi sự gần gũi với những ngôi nhà miền Tây khác. |
![]() ![]() |
| Trong khi đó, tầng đầu tiên, với ba phòng ngủ, được bọc hoàn toàn bằng các tấm dệt cố định và có thể mở được. |
![]() ![]() |
| Các tấm cót ép tre không chỉ được sử dụng như tường bao bên ngoài mà còn là đặc trưng thiết kế trên cửa ra vào và tủ quần áo. |
![]() ![]() ![]() |
| Ngôi nhà với cấu trúc hiện đại nhưng vẫn giữ được sự hoà hợp với cuộc sống nông thôn xung quanh, mang đến sự hài hòa giữa văn hóa Khmer -Việt Nam bản địa. Do đó, biệt thự mái lá này được nhiều trang tin và tạp chí kiến trúc của nước ngoài hết lời khen ngợi. |













