Google News

Biệt thự nhiệt đới tích hợp nhiều giải pháp chống nóng

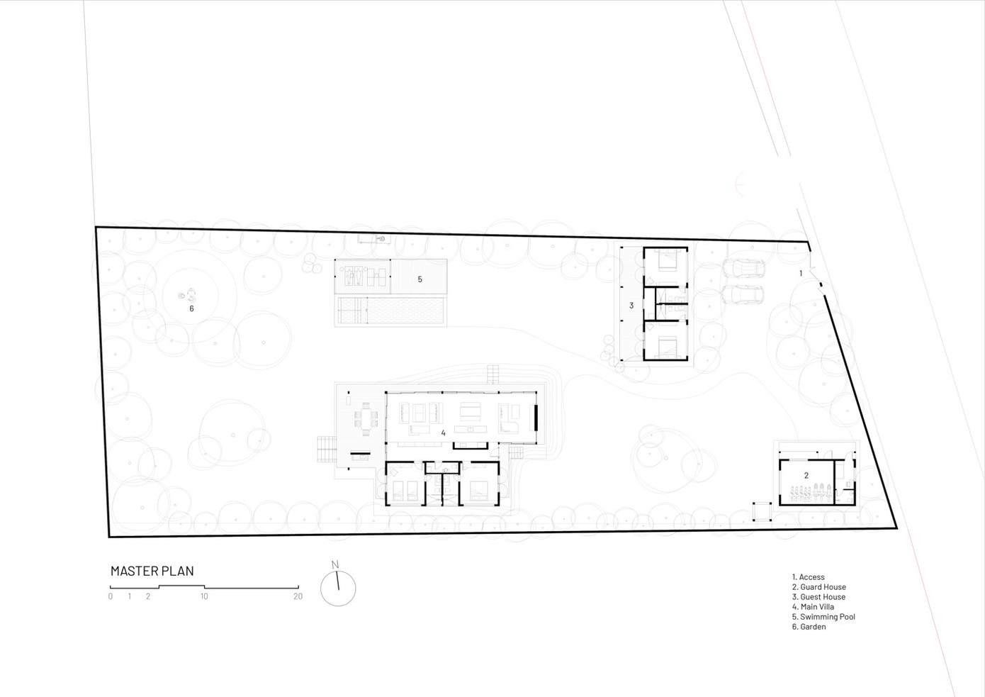
TPO - Biệt thự được đặt dưới tán cây để có được bóng mát và tiện nghi nhiệt, mặt tiền chính nằm trên đường rừng để có tầm nhìn rất đẹp ra khu vườn nhiệt đới và hồ bơi.

Căn biệt thự được thiết kế để phù hợp với tình hình thực địa và điều kiện nhiệt đới gió mùa ở Việt Nam: thời tiết nắng nóng, mưa lớn, gió biển, côn trùng và các động vật hoang dã.

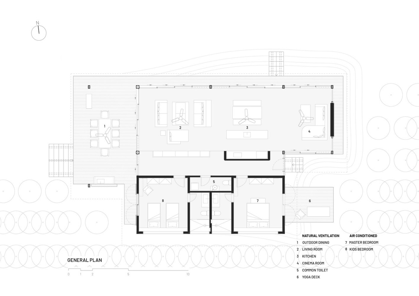
Tuân theo các nguyên tắc khí hậu, căn biệt thự tích hợp nhiều giải pháp thiết kế như: Mái lớn để đảm bảo che chắn nắng, mưa, cách nhiệt; Các khu vực chung được thông gió tự nhiên bằng quạt trần để tiết kiệm năng lượng và duy trì cảm giác nhiệt đới; Hai phòng ngủ đã được cách nhiệt bằng mái trấu, tường bê tông nhẹ, cửa ra vào và cửa sổ lắp kính 2 lớp để giữ lạnh từ điều hòa.

Là một công trình nghỉ dưỡng, gia chủ có khu vực riêng cho khách để có được sự riêng tư đồng thời tạo ra một vùng đệm từ con đường nhỏ để chặn tiếng ồn tiềm ẩn.

Phía bên ngoài ngôi nhà, vôi được sử dụng thay cho sơn để mang lại hiệu ứng tự nhiên cho ngôi nhà.

Bên trong, nội thất thiết kế mang tính tối giản để hạn chế bảo trì và đảm bảo vận hành dễ dàng: Gạch xi măng được thiết kế riêng, đồ nội thất rời bằng gỗ nguyên khối, màu sắc trung tính thanh lịch,...

Ánh sáng ban ngày được lấy chủ yếu từ tự nhiên qua các cửa lùa bằng kính, ánh sáng nhân tạo chỉ tập trung ở những nơi cần thiết như góc đọc sách, khu vực ăn uống và bếp, phòng tắm và phòng ngủ.

Khu sân vườn được trồng các loại cây địa phương không cần nhiều nước và chăm sóc. Hệ thống bể bơi sử dụng nước không có clo, mực nước bể bơi sâu khoảng 120 cm để giảm chi phí thiết bị và tiết kiệm nước.

Căn Biệt thự là nơi hoàn hảo để thư giãn vào cuối tuần và ngày lễ, chỉ cách thành phố Sài Gòn sầm uất 2h30 lái xe.