![]() |
| Lựa chọn loại ngói kiểu cũ và lợp theo cách truyền thống, ngôi nhà hai tầng mới xây như hoà mình vào vẻ cổ kính của nơi làng cổ. Việc thiết kế mái dốc một chiều về phía trước, vừa mang lại công năng cho vị trí két nước dưới mái phía sau, vừa tạo được tỷ lệ vừa phải với con ngõ nhỏ trước nhà. |
![]() |
| Những kiến trúc sư đã khéo léo khoác lên cho ngôi nhà những đường nét kiến trúc đương đại với không gian sống tiện nghi, đáp ứng nhu cầu và thẩm mỹ của thế kỷ mới. |
![]() |
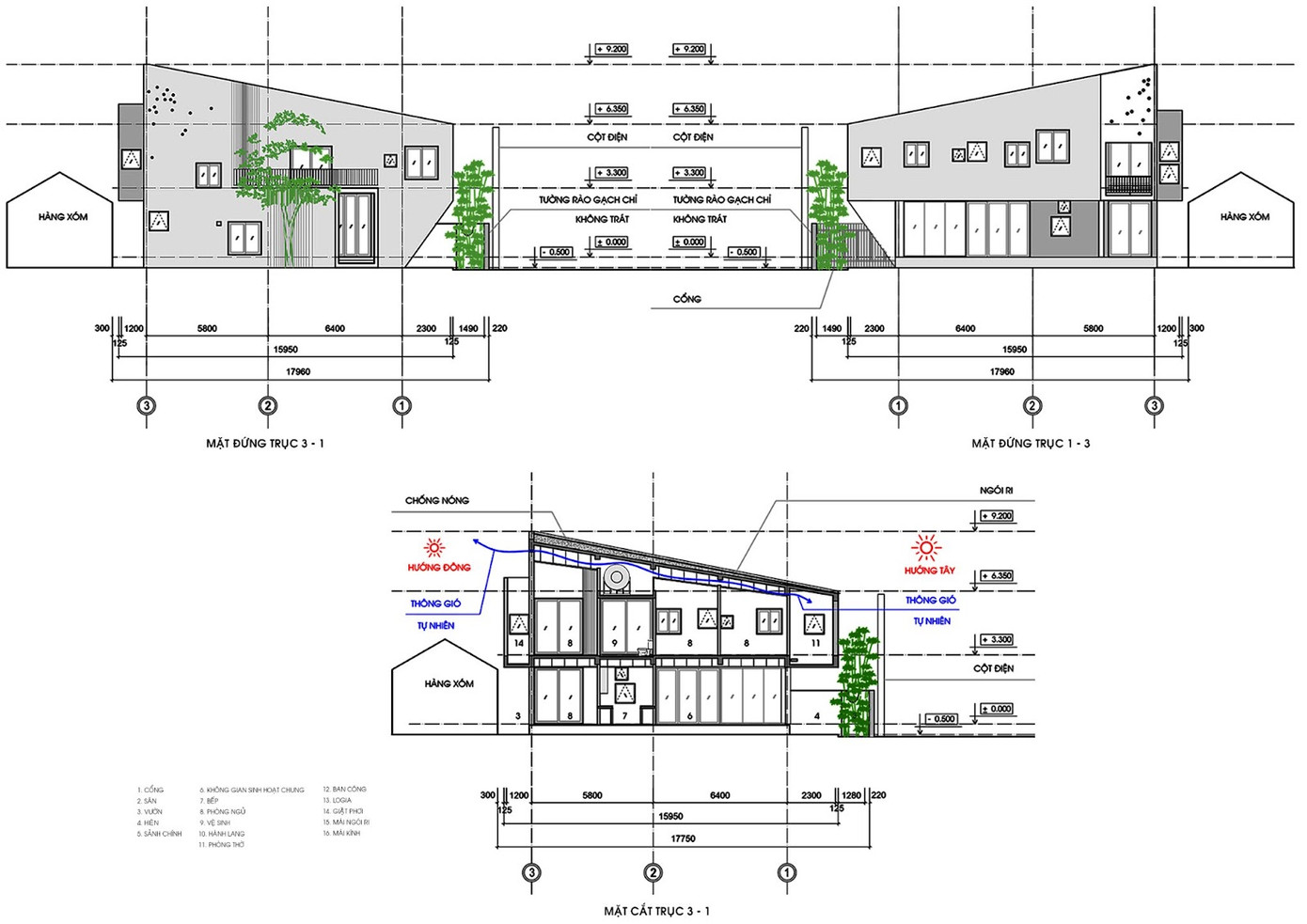
| Ngôi nhà được thiết kế đáp ứng đầy đủ nhu cầu sử dụng lâu dài của gia đình 3 thế hệ. Hai đầu ngôi nhà là hướng Đông – Tây được xây kín, vừa tránh ánh nắng rọi trực tiếp, vừa tránh tầm nhìn sang nhà hàng xóm, tạo sự riêng tư cho quần thể. |
![]() ![]() ![]() |
| Dãy phòng được thiết kế mang nhiều công năng khác nhau bên hướng Nam của ngôi nhà nhằm mục đích đón sáng và gió được tốt nhất. Phía bắc là khu vực hành lang, cầu thang tạo khoảng đệm tránh cho nhiệt độ phòng bị ảnh hưởng trực tiếp với nhiệt độ bên ngoài. |
![]() ![]() |
| Ánh sáng tự nhiên được tận dụng thông qua những cửa kính lớn tại các phòng của ngôi nhà. Thiết kế vừa mang lại không gian sống chan hoà, vừa giúp tiết kiệm năng lượng điện đáng kể. |
![]() |
| Sự kết hợp giữa “Cũ - Mới” “Truyền thống - Hiện Đại” được các kiến trúc sư sử dụng không chỉ ở hình khối kiến trúc, vật liệu của công trình, mà còn thể hiện trong từng chi tiết nội thất. |
![]() |
| Khu vực hành lang - cầu thang nằm về phía Bắc ngôi nhà, tạo khoảng đệm, tránh sự tiếp xúc trực tiếp với không khí lạnh của miền Bắc – Việt Nam. |
![]() |
| Ngôi nhà được thiết kế với đầy đủ công năng theo yêu cầu của gia chủ. |
![]() |
| Mái ngói không chỉ gợi nhớ về hình ảnh ngôi nhà Việt xưa mà còn tạo nên sự hài hòa với cảnh quan xung quanh. |
![]() |
| Hệ thống hàng hiên bao quanh tầng 1 được thiết kế thông minh, đóng vai trò như một lớp vỏ bảo vệ cho ngôi nhà. Không chỉ tạo khoảng đệm cho những vách kính lớn của phòng khách, hàng hiên còn là giải pháp hiệu quả cho việc điều hòa không khí tự nhiên, giúp không gian sống luôn mát mẻ, thoáng đãng ngay cả trong những ngày hè oi bức. |
![]() |
| Một điều thú vị ở ngôi nhà là việc sử dụng những mảnh gốm nhỏ từ bát đĩa, chai lọ men lam truyền thống để ốp lên hai cột tròn ở hiên nhà. Đây không chỉ là một giải pháp tiết kiệm mà còn là một cách sáng tạo để lưu giữ và tái hiện những giá trị văn hóa xưa. |
![]() |
| Ngôi nhà về đêm nổi bật với những nét rất hiện đại. |














