![]() |
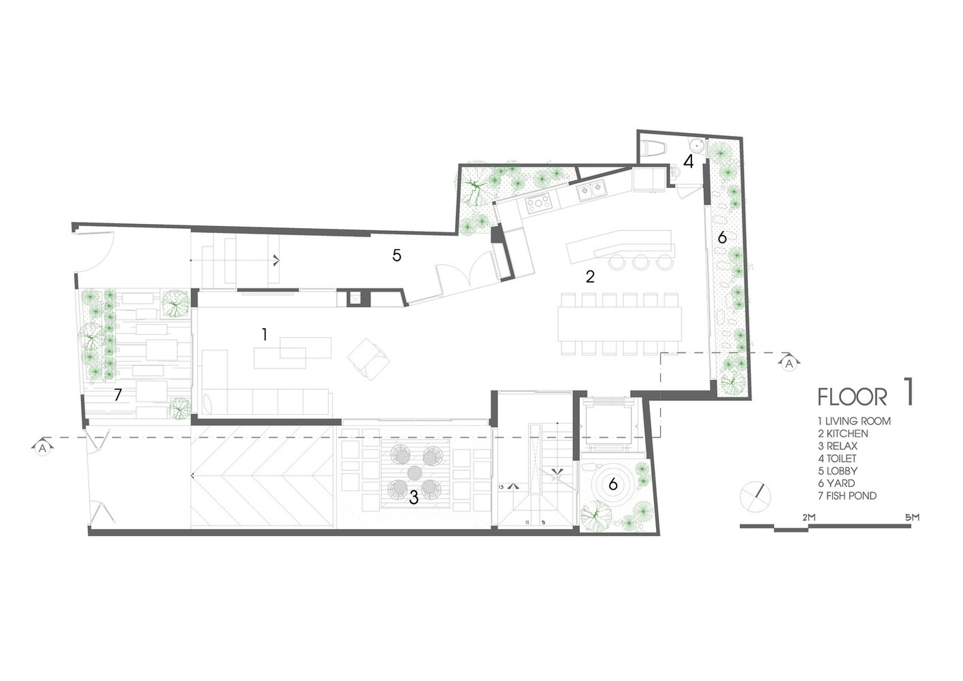
| Căn nhà đầy cây xanh ở Quận 11 TP Hồ Chí Minh. Nằm theo hướng tây - tây nam, nơi đây chịu tia cực tím và cái nóng trực tiếp vào buổi trưa. Để làm dịu thời tiết, chủ nhà muốn một không gian mát mẻ với nhiều cây xanh. |
![]() ![]() ![]() |
| Căn nhà có cửa với các kích thước khác nhau và ít nhất một vườn cây ở mỗi tầng. Có một bể cá đặt ở trước nhà, bao xung quanh là cây xanh. Chủ nhà có thể thấy bể cá và cây xanh từ trong phòng khách và tận hưởng không gian thiên nhiên. |
![]() ![]() ![]() |
| Chủ nhà yêu thích sự tối giản và mộc mạc nên màu chủ đạo của căn nhà là màu nâu và màu be. Gỗ, kính, và sàn bê tông là chất liệu chủ yếu. Để ngăn bụi, tiếng ồn hay ánh nắng trực tiếp, cây xanh được bố trí như một lá chắn dọc ban công và hành lang. |
![]() ![]() ![]() |
| Cửa kính trượt nằm chắn giữa bên trong và bên ngoài căn nhà để tạo cảm giác thông thoáng, rộng rãi và gần gũi với thiên nhiên. Ngoài ra, chủ nhà có một khu vườn nhiệt đới và trồng rau trên sân thượng. |
![]() |
| Cây xanh và tường gạch so le giúp chắn tia cực tím và bụi tốt hơn. |










