Google News

Đã mắt với kiểu nhà ống ban công rộng độc đáo

Chủ nhà muốn có hiên rộng rãi để làm sân chơi, trồng cây và nơi ăn uống cho cả gia đình.
Nằm trên mảnh đất 70 m2 (5x14m), ngôi nhà phố ở Hạ Long (Quảng Ninh) là nơi sống của một đôi vợ chồng trẻ, 2 con và người giúp việc. Nhà cần có garage, không gian liên thông giữa phòng khách - phòng ăn - bếp, 4 phòng ngủ, nơi thờ cúng, giặt phơi. Đặc biệt, chủ nhà yêu cầu có khu sân chơi, trồng cây rộng rãi.
KTS Cao Hải Sơn (Cao Architects) đưa ra ý tưởng ban công rộng 15 m2 ở tầng 2 với kết cấu thép nhẹ được treo lên dầm chịu lực của tầng 3.
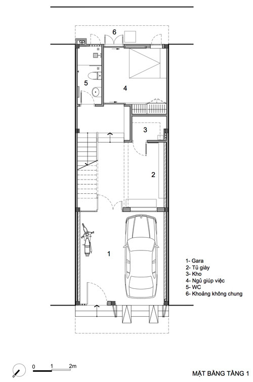
Garage được hoàn thiện bằng vật liệu thô ráp: đá, sỏi và gạch bê tông. Cửa kính lớn ngăn cách và lấy ánh sáng cho khu vực phía trong nhà.
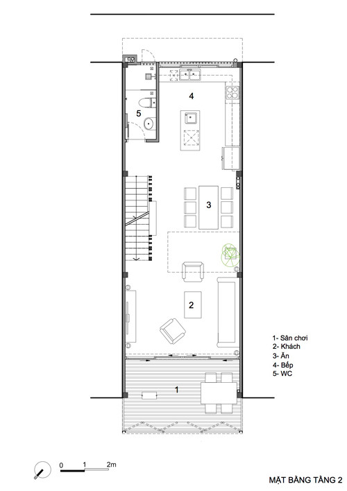
Không gian mở gồm phòng khách, bếp ăn, sân chơi trải dài trên toàn bộ diên tích tầng 2.
Ánh sáng tự nhiên có thể đến mọi ngóc ngách nhờ cửa kính lớn phía trước và sau, cộng thêm giếng trời lớn giữa nhà.
Không gian rộng rãi này thích hợp với sinh hoạt của gia chủ là đôi vợ chồng trẻ thường xuyên có các cuộc tụ họp gia đình, bạn bè và hai con nhỏ ưa hoạt động.
Ban công không chỉ đủ chỗ kê bàn ăn ngoài trời, trồng cây cảnh mà còn có khoảng diện tích lớn cho trẻ chơi đùa.
Tủ bếp được thiết kế mở phù hợp với thói quen sử dụng của chủ nhà.
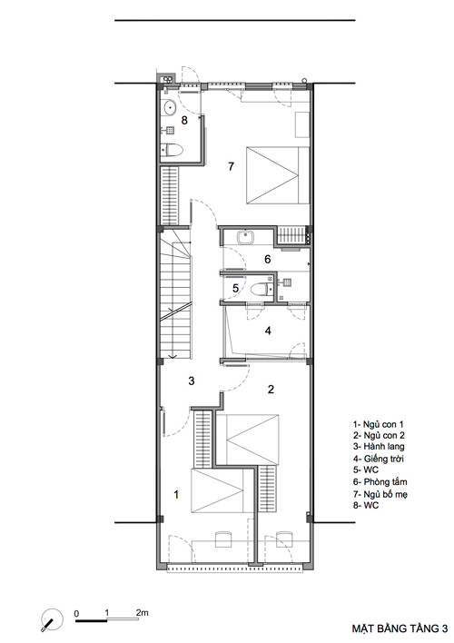
Các phòng đều được chiếu sáng tự nhiên nhờ cửa kính trước và sau cộng thêm giếng trời giữa nhà.
Cầu thang được bố trí gần giếng trời nên thoáng sáng.
Nhà có thiết kế đơn giản, không rườm rà nhưng đáp ứng tốt nhu cầu của gia đình.