Google News Đẹp và lạ với mẫu nhà 1 tầng đơn giản mà tiện nghi của năm 2022
TPO - Công trình sử dụng gạch thông gió đất nung, màu gỗ trầm trên nền sơn trắng kết hợp mảng xanh tạo nên nét hiện đại, pha chút mộc mạc hòa mình vào thiên nhiên, mang lại cảm giác ấm áp và thư thái cho gia đình.
 |
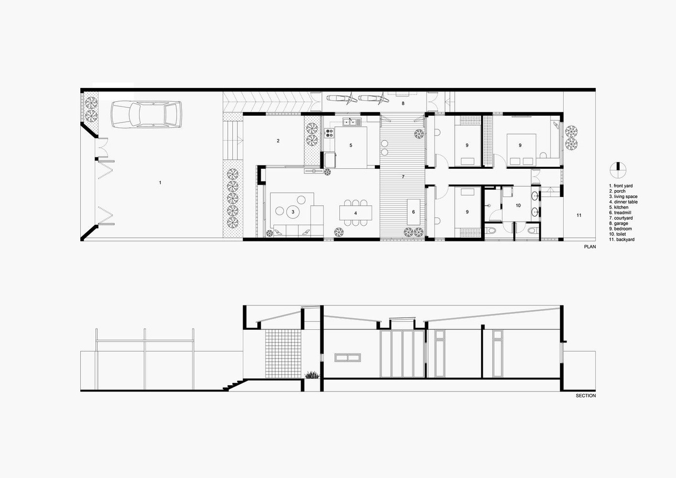
| Đây là ngôi nhà có diện tích rộng và mặt tiền hướng Tây, cách trung tâm thành phố Bến Tre khoảng 10km. Chủ nhà là một gia đình trẻ, họ mong muốn tổ ấm của mình là nơi tràn ngập sự ấm cúng và thư thái, sau những giờ làm việc mệt mỏi. |
 |
| Đồng thời, gia chủ hi vọng ngôi nhà còn là nơi các thành viên có thể nhìn thấy cây xanh, ánh nắng, đám mây và cảm nhận làn gió mát mỗi ngày. Họ muốn tận dụng thời gian rảnh vào buổi tối để trò chuyện, học và chơi cùng con. Vì vậy, khi lựa chọn giải pháp bố trí không gian, tính kết nối được kiến trúc sư (KTS) ưu tiên hàng đầu. |
 |
| Với tiêu chí thiết kế của gia chủ, KTS đã lựa chọn phương án nhà 1 tầng, ngăn cách giữa khu sinh hoạt và nghỉ ngơi bằng một khoảng sân giữa nhà. |
 |
| Khoảng sân giữa nhà là không gian gắn kết các thành viên trong gia đình, có công năng linh hoạt, bao gồm góc làm việc, tập thể dục, khu vui chơi cho trẻ nhỏ. |
 |
| Cây xanh vào các không gian giúp tạo không khí trong lành và nhiệt độ mát mẻ cho ngôi nhà. |
 |
| Cửa chính hướng Bắc, tiếp cận bằng sảnh lớn tránh ánh nắng trực tiếp, sảnh này cũng là không gian thư giãn của các thành viên trong gia đình vào mỗi buổi tối. |
 |
| Hệ thống thông gió tự nhiên được bố trí xuyên suốt tòa nhà với giải pháp tường hai lớp: lớp gạch thông gió và lớp cửa kính lùa. Giải pháp này vừa giúp thông gió tốt, vừa mang lại sự riêng tư cần thiết cho cuộc sống gia đình. |
 |
| Công trình sử dụng gạch thông gió đất nung, màu gỗ trầm trên nền sơn trắng kết hợp mảng xanh tạo nên nét hiện đại, pha chút mộc mạc hòa mình vào thiên nhiên, mang lại cảm giác ấm áp và thư thái cho gia đình. |
 |
| Thông qua ngôi nhà, KTS mong muốn dù sống ở không gian nào thì các thành viên trong gia đình cũng có thể nhìn thấy nhau và trò chuyện cùng nhau, giúp không khí gia đình trở nên ấm cúng hơn. Đó cũng là “cảm giác” quan trọng nhất mà đội ngũ thiết kế muốn mang đến cho khách hàng. |