TPO - Nhà Bè house có những bức tường gạch rỗng ở mặt trước và sau ngôi nhà, vừa để lưu thông không khí, vừa giúp gia chủ có thể nhận thấy sự đổi thay của thiên nhiên từng ngày.
Ngôi nhà đặc biệt sử dụng lớp tường gạch rỗng lưu thông không khí
 |
| Nhà Bè house rộng 144m2, nằm ở vùng ngoại ô Sài Gòn. |
 |
| Vị trí ngôi nhà trong khu dân cư Phú Xuân. |
Ngôi nhà nằm ở khu vực ngoại ô TP Hồ Chí minh, nơi có nhiều khu dân cư mới với mật độ thấp.
 |
| Ngôi nhà 3 tầng rộng rãi, thoáng mát. |
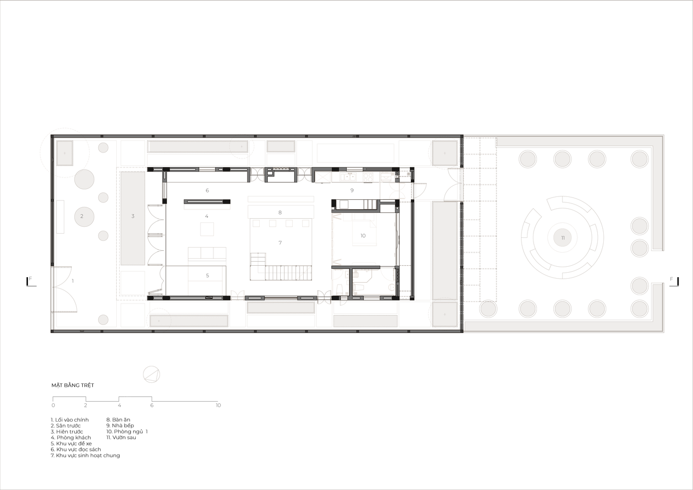
Diện tích xây dựng ngôi nhà là 144m2, dành cho 4 người phụ nữ trung niên và mẹ của họ. Chủ nhân ngôi nhà muốn nơi đây là chốn bình yên để trở về, và để chăm sóc người mẹ già.
 |
| Ngôi nhà nằm trên khu đất dài hình chữ nhật, bao xung quanh là khung cảnh thiên nhiên. |
 |
| Mặt đứng ngôi nhà. |
 |
| Vi khí hậu của khu đất khá dễ chịu, mát mẻ do có con rạch dừa chạy ngang. |
Mặt bằng khu đất hình chữ nhật dài. Ngôi nhà được xây dựng ở khu vực có con rạch dừa chạy ngang. Vì vậy mà tiểu vi khí hậu ở đây trở nên dễ chịu, nhất là vào những ngày hè oi bức.
 |
| Những bức tường rỗng vừa lưu thông không khí, vừa là điểm nhấn của ngôi nhà. |
Ngôi nhà có các hướng mở nhìn ra bên ngoài nhưng vẫn đảm bảo sự riêng tư bên trong và cản bớt những tác động mạnh từ thiên nhiên. KTS sử dụng những bức tường rỗng có chiều cao vừa đủ để che chắn, vừa đủ tạo ra bóng đổ, vừa đủ để gió vào nhẹ nhàng, và cho phép nắng hắt dịu dàng qua những lỗ gạch và ngắm những cơn mưa nhiệt đới nhưng không bị ướt.
 |
| Lớp tường gạch và các ô cửa đưa gió đi vào nhà. |
Gió mang theo hơi ẩm từ con rạch đi vào nhà thông qua các ô cửa và lớp tường gạch, không khí nóng đi lên tầng áp mái và đi ra ngoài theo các lỗ trống.
Cơ chế này giữ cho các không gian nghỉ ngơi và sinh hoạt ở các tầng dưới luôn được mát mẻ và dễ chịu.
Không gian sống chan hòa, xanh mát
 |
| Mái dốc che nắng, mưa cho ngôi nhà hiệu quả. |
  |
| Phòng khách mở ra với khu vườn bên ngoài. |
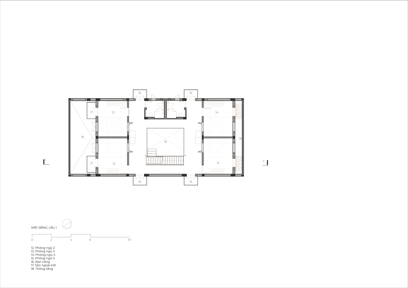
Ngôi nhà lớn được thiết kế với mái dốc về hai phía. Bên trong, ngôi nhà gồm 5 phòng ngủ, không gian tiếp khách kết nối với khu vườn và khoảng sân trước nhà. Các không gian chung kết nối liên tục với nhau khép kín bao quanh một lõi thông tầng.
 |
| Khoảng thông tầng đưa ánh sáng và gió và nhà, kết hợp với ánh sáng và gió. |
 |
| Mặt cắt ngôi nhà. |
Ngôi nhà có hướng nhìn đối nội quay vào hành lang và khoảng thông tầng chính giữa nhà, nơi đặt cầu thang bộ. Một khoảng trời nhỏ với ánh sáng chan hòa, làn gió mát, và màu xanh thư giãn từ cây cối.
 |
| Tầng mái là nơi đặt bàn thờ, đồng thời chống nắng gay gắt chiếu xuống tầng dưới. |
 |
| Mặt bằng mái ngôi nhà. |
Khoảng thông tầng xuyên suốt với tầng áp mái để trống, dùng là nơi đặt bàn thờ gia tiên. Tầng áp mái có tác dụng như khoảng đệm để ngăn bớt sức nóng từ bức xạ mặt trời vào buổi trưa.
 |
| Các phòng kết nối với nhau với trung tâm là phòng bếp. |
 |
| Tông màu chính trong ngôi nhà là màu nâu của gỗ và gạch, tạo vẻ ấm cúng, hài hòa. |
 |
| Mặt bằng tầng trệt ngôi nhà. |
 |
| Mặt bằng tầng 1 ngôi nhà. |
Trung tâm của căn nhà là nơi đặt bàn ăn lớn kết nối các không gian sinh hoạt như tiếp khách, đọc sách, bếp, và phòng ngủ mở của mẹ. Các không gian này đều mở ra các khu vườn, có tầm nhìn vừa đủ để ánh nắng và thiên nhiên đi vào một cách dễ chịu.
 |
| Không gian thoáng đãng ở ngoại ô là nơi phù hợp để thư giãn, kiếm tìm sự bình yên. |
Sống xa trung tâm thành phố một chút để tận hưởng không gian rộng rãi hơn, để có thể hít thở bầu không khí trong lành hơn và có cơ hội ngắm bầu trời trong xanh, mát lành và những đêm đầy sao đang là xu hướng của một số người đang chán cuộc sống bị nén chặt trong những khu vực trung tâm thành phố, nhất là sau đại dịch Covid-19.