Google News Độc đáo với mẫu nhà ống gác lửng chỉ bằng gạch ống giá rẻ ở Đồng Nai
TPO - Mẫu nhà này đáp ứng được nhu cầu về không gian sống đẹp và thú vị cho người lao động thu nhập thấp trên khắp nước ta.
 |
| Năm 2016, một cặp vợ chồng mới cưới mong muốn có ngôi nhà của riêng mình trên quỹ đất hạn chế và kinh phí eo hẹp nên đã nhờ các kiến trúc sư giúp mình thực hiện hóa ước muốn. |
 |
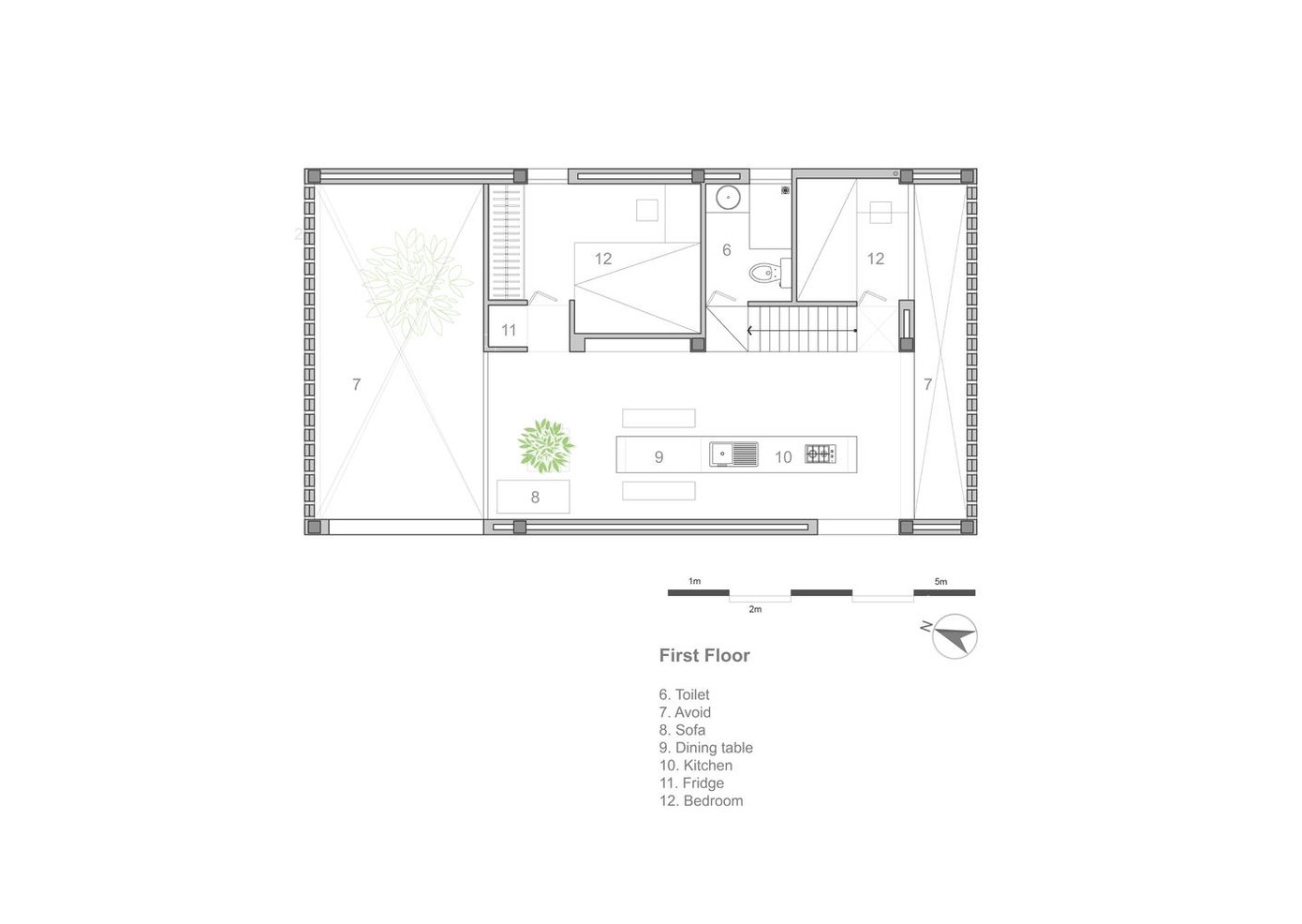
| Từ đó, ngôi nhà chỉ sử dụng duy nhất gạch ống để xây dựng cũng như làm mặt tiền rộng 108m2 đã ra đời trong khu dân cư mới ở huyện Long Thành (Đồng Nai).  | | Để tiết kiệm được nhiều chi phí nhất có thể, hai vợ chồng đã mua nguyên vật liệu để tự làm tất cả đồ nội thất. |  |  | | Sân trước và sân sau được bao bọc bởi các bức tường hở được xây bằng gạch ống xen kẽ, tạo ra các ô thoáng, hình thành không gian đệm để giảm sức nóng từ môi trường bên ngoài vào nhà.  | | Trong đó sân trước là khu vực thư giãn như uống cà phê buổi sáng. Đây là nơi mà gió, ánh sáng mặt trời và bóng của các bức tường gạch gặp nhau. |  |  | | Tầng 1 là không gian đa chức năng, vừa dùng để tụ tập bạn bè, vừa dùng để mở quán cà phê nhỏ sau này. |  | | Tầng lửng là không gian của gia đình bao gồm hai phòng ngủ (một cho hai vợ chồng, một cho đứa con trong tương lai), bếp và bàn ăn. |  | | Lối đi nhỏ trong nhà giúp cho người ở cảm nhận được hướng gió và chạm vào bóng râm cũng như ánh sáng mặt trời khi họ di chuyển từ tầng trệt lên cầu thang. |  | | Đây là một mẫu nhà giá rẻ được nhiều kiến trúc sư trên thế giới khen ngợi.  | | Bởi nó đáp ứng được nhu cầu về không gian sống đẹp và thú vị cho người lao động thu nhập trung bình và thấp trên khắp nước ta.  | | Bản vẽ thiết kế của ngồi nhà. | | | | | |