Google News Dùng cây xanh làm mặt tiền giúp nhà luôn mát mẻ
TPO - Mặt tiền bằng cây xanh giúp gia chủ tiết kiệm được chi phí thiết kế bên ngoài, lại làm giảm tiêu thụ điện năng bên trong nhà.
 |
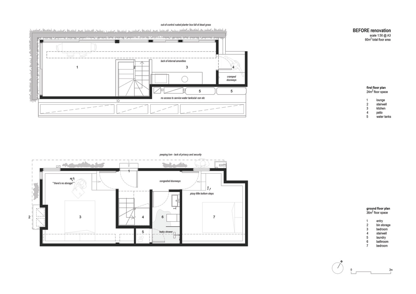
| Sau 10 năm được xây dựng, ngôi nhà nhỏ này được cải tạo không gian bên ngoài và bên trong, để loại bỏ lỗi của người xây dựng và đáp ứng nhu cầu của người ở. |
 |
| Theo đó, cửa bản lề được thay thế bằng cửa trượt và lắp đặt hệ thống khung cửa tùy chỉnh để giải quyết tình trạng thiếu không gian lưu trữ. |
 |
| Căn bếp tồi tàn được cải tạo để cung cấp nhiều chức năng hơn. |
 |
| Khu vực sinh hoạt có chỗ ngồi tùy chỉnh để tổ chức tiệc tối cho khách đến nhà. |
 |
| Điểm nhấn đặc biệt của ngôi nhà là mặt tiền được phủ một lớp cây xanh để làm mát không gian trong nhà. |
 |
| Mặt tiền bằng cây xanh giúp gia chủ tiết kiệm được chi phí thiết kế bên ngoài, lại làm giảm tiêu thụ điện năng bên trong nhà. Nhờ sự cải tạo sáng tạo, ngôi nhà sau khi hoàn thiện khiến người đi đường vô cùng trầm trồ. |