Google News Khu vườn tuyệt đẹp bên trong nhà cấp 4 mái bằng ở ngoại ô Hà Nội
TPO - Các khu vực được kết nối với nhau thông qua lối đi nhỏ được lát tre trên trần, phần chuyển tiếp giữa mỗi không gian là khoảng sân vườn trồng hoa, cây cảnh và có cả giếng.
 |
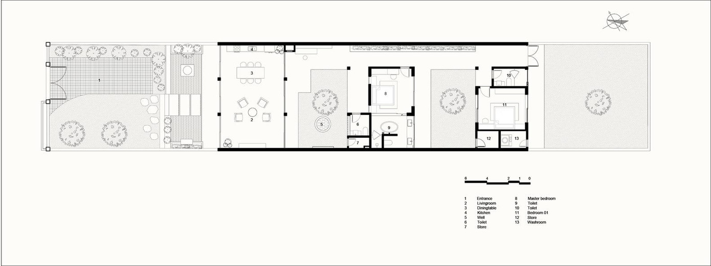
 | | Công trình này có diện tích xây dựng là 200m2 ở Thạch Thất (Hà Nội), do các kiến trúc sư của 365 Design thiết kế và hoàn thiện. | |
 |
| Về tổng thể, đây là một căn nhà mái bằng được chia làm 3 phần.  | | Khu vực đầu tiên gồm phòng khách, bàn ăn và bếp. |  | | khu vực 2 gồm nhà vệ sinh, nhà kho, phòng ngủ lớn; khu vực 3 gồm phòng ngủ nhỏ, kho để đồ và nhà vệ sinh. |  | | Các khu vực được kết nối với nhau thông qua lối đi nhỏ được lát tre trên trần. |  | | Phần chuyển tiếp giữa mỗi khu vực là khoảng sân vườn trồng hoa, cây cảnh và có cả giếng. |  | | Từ các khu vườn lộ thiên này, ánh sáng và không khí trong nhà được lưu thông, tạo sinh khí cho người ở. |  | | Nhà vệ sinh có lớp gạch thông gió phía trên để không khí được lưu thông. |  | | Các cánh cửa trong nhà đều làm bằng kính trong suốt để tạo không gian đa chiều cho ngôi nhà, nhất là lúc nắng sớm hoặc khi hoàng hôn. |  | | Nội thất trong nhà hầu hết là đồ gỗ màu nâu đen, đem lại cảm giác ấm cúng và yên tĩnh cho những người sinh sống trong nhà. | |