![]() |
| Kiến trúc của công trình này được hình thành dựa trên ý tưởng tạo ra tòa nhà trung tính và tối giản về mặt thị giác. |
![]() ![]() |
| Khu vực sinh hoạt rộng rãi mở ra hiên sau. Phần đầu hồi hướng ra mặt tiền lối vào gara và ở phía đối diện là phòng khách, được phủ bằng hai lớp gạch thủy lực. |
![]() |
| Vật liệu được lựa chọn để đảm bảo cách nhiệt và cách âm, đồng thời cho phép các thành phần của tòa nhà mỏng hơn, tạo ra khối lượng nhẹ hơn. |
![]() ![]() |
| Hệ thống kết cấu sử dụng dầm và trụ kim loại, trong khi các tấm sàn trên, mái và tường bên trong được làm từ các tấm gỗ dán chéo làm từ gỗ thông đã qua xử lý. |
![]() ![]() |
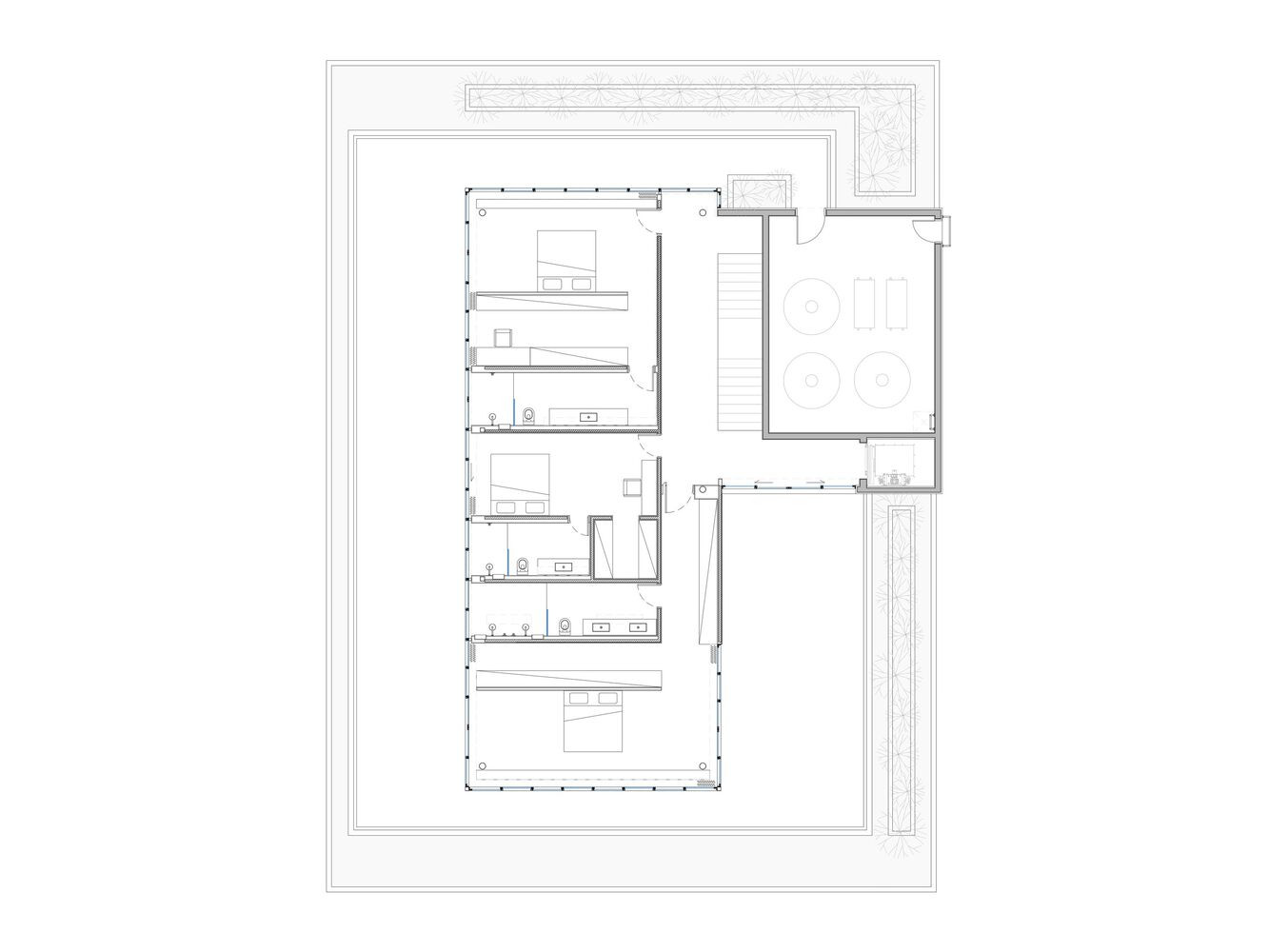
| Ánh sáng tự nhiên và thông gió chéo được đảm bảo bằng các mái vòm kính pha lê trong phòng tắm và các lỗ mở được đóng khung bằng khung nhôm trượt với kính dán nhiều lớp không màu, chống tia cực tím. |
![]() ![]() ![]() |
| Các hệ thống điện và hệ thống ống nước chạy giữa trần thạch cao và các tấm ván CLT, với hệ thống cáp và đường ống tập trung trong các trục bảo trì được phân bổ đều khắp tòa nhà. |
![]() |
![]() ![]() |
| Máng xối kỹ thuật chạy ngang dưới tấm sàn trong khoảng trống ở tầng hầm. Độ cao của khối chính ngăn cản sự truyền nhiệt và độ ẩm vào bên trong. |
![]() ![]() |
| Kết hợp với các đặc tính cách nhiệt của gương nước xung quanh, thông gió và chiếu sáng tự nhiên dồi dào, mái nhà bằng chăn nhiệt dẻo và các tấm pin mặt trời để đun nước và tạo ra năng lượng quang điện. Giải pháp này đảm bảo sự thoải mái về môi trường cho nơi ở, đồng thời giảm chi phí điện cho chiếu sáng nhân tạo và điều hòa không khí. |















