![]() ![]() |
| Biệt thự này có diện tích 250m2, thuộc khu đô thị mới giữa Cầu Rồng và Cầu Trần Thị Lý của Thành phố Đà Nẵng. |
![]() ![]() |
| Biệt thự thể hiện khái niệm về sự khởi đầu của một cuộc sống mới, gắn kết và nuôi dưỡng tình yêu gia đình giữa đôi vợ chồng trẻ và hai đứa con của họ. |
![]() ![]() ![]() ![]() |
| Các khối chức năng chính định hình mọi hoạt động kết nối và không gian phụ trợ. |
![]() ![]() ![]() ![]() |
| Vùng đệm và các khu vực chuyển tiếp đóng vai trò phân chia ranh giới sống, giảm nhiệt trực tiếp, tạo ra không gian xanh cần thiết cho sự giao tiếp giữa con người và thiên nhiên, khuyến khích sự tương tác giữa các thành viên trong gia đình. |
![]() ![]() |
| Hình thái tổng thể của biệt thự là những đường nét và hình khối gọn gàng, súc tích. |
![]() ![]() ![]() ![]() |
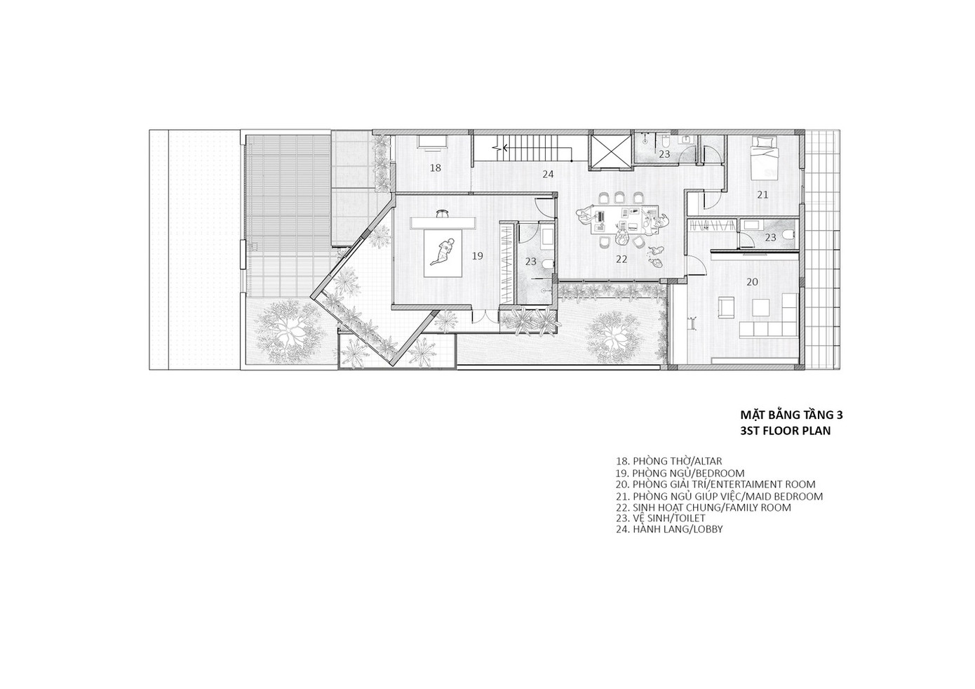
| Các khối không gian như phòng ngủ, phòng khách, bếp,... đảm bảo sự riêng tư nhưng vẫn hướng đến sự tự do, cởi mở và tận dụng tối đa lợi thế của bối cảnh. |
![]() ![]() ![]() ![]() |
| Hệ thống che nắng bằng gỗ linh hoạt kết hợp với nhiều loại cây xanh tạo nên những chuyển động thú vị trong ngày cũng như sự hài hòa với cảnh quan xung quanh. |





















