Mẫu nhà cấp 4 7x20 mái Thái
Đặc điểm kiến trúc mái Thái được ưa chuộng bởi có độ dốc lớn nên không gây tình trạng ứ đọng trên mái. Như chúng ta đã biết, việc nước mưa đọng trên mái lâu dần sẽ ngấm xuống trần, gây ẩm mốc. Thậm chí khi mưa lớn có thể xảy ra tình trạng dột nước bên trong nhà, gây hư hại, ảnh hưởng đến sức khoẻ của gia chủ.
Bên cạnh đó, thiết kế mái Thái còn có tác dụng chống nắng hiệu quả, giúp căn nhà giữ nền nhiệt ổn định, mát mẻ. Độ dốc lớn của phần mái cũng giúp lưu thông không khí tốt hơn. Theo quan niệm dân gian Việt Nam, phần mái này giúp gia chủ có vượng khí tốt.
![]() |
| Mái Thái được kết hợp với kiến trúc tân cổ điển cho mẫu nhà cấp 4 7x20 vừa sang trọng, cổ điển lại làm nổi bật kiến trúc đồ sộ của tổng thể kiến trúc. |
![]() |
| Mẫu nhà cấp 4 7x20 mái Thái sử dụng kiến trúc chữ L cực kỳ phổ biến tại khu vực nông thôn Việt Nam hiện nay hoặc sử dụng cho ngôi nhà xây dựng theo hướng biệt thự hiện nay. |
![]() |
| Thiết kế chi tiết bên trong mẫu nhà cấp 4 7x20 mái Thái. |
![]() |
| Phương án bố trí mặt bằng mẫu nhà cấp 4 7x20 thứ hai như sau: Kiến truc sư để lại một diện tích nhỏ phía trước nhà. Tiếp đến là cửa 1 cánh nhỏ gọn tiến vào không gian phòng khách. Tại mẫu nhà này phòng khách nối thông với khu vực bàn ăn cùng khu vực bếp. Đặt cuối nhà cùng với cửa thông ra khu vực phơi đồ của cả gia đình. |
Mẫu nhà cấp 4 7x20 có gara oto
![]() |
Mẫu nhà cấp 4 7x20 có gara nằm ngoài khu vực sinh hoạt. Với thiết kế này gara oto sẽ không gây bí bách, không gây ám mùi vào khu vực sinh hoạt của cả gia đình. Mẫu nhà này sử dụng kiến trúc hiện đại kết hợp với phần mái chữ A giúp cho tổng thể thiết kế trông nhỏ gọn và phù hợp xây dựng tại khu vực thành phố hiện nay.
![]() |
Tương tự với mẫu nhà cấp 4 7x20 có gara ở ngoài thì mẫu nhà này mang đến sự sang trọng cổ điển khi lựa chọn phong cách kiến trúc cổ điển kết hợp mái Thái giật cấp ấn tượng.
![]() |
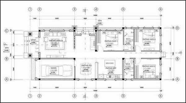
Mẫu nhà cấp 4 7x20 có gara bên trong nhà. Với phần gara này được bố trí trong nhà, song song với phòng khách. Để phân cách hai không gian này với nhau kiến trúc sư thường sử dụng tủ gỗ trang trí với khoảng rỗng để vừa thông thoáng khi lại vừa làm nơi đặt đồ trang trí.
Mặt bằng thiết kế cho mẫu nhà cấp 4 7x20 này như sau:
![]() |







