![]() |
| Đây là một ngôi nhà mái bằng một tầng ở khu vực mới phát triển tại rìa phía Nam của TP Đà Nẵng. |
![]() |
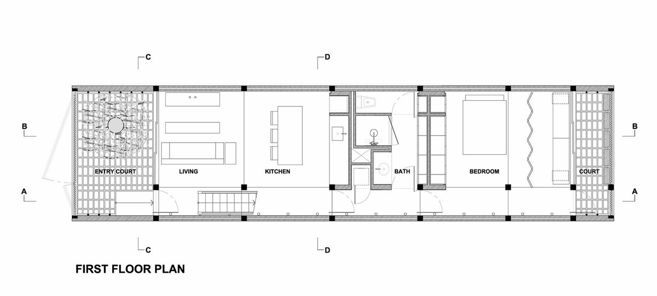
| Ngôi nhà được xây dựng trên một lô đất có diện tích 5m x 20m, trong đó diện tích nội thất là 70 m2 (753 SF), 53 m2 (570 SF) sân thượng và 18 m2 (195 SF) sân trong. |
![]() |
![]() |
| Về kết cấu, ngôi nhà bao gồm một phòng khách, nhà bếp, một phòng ngủ và một phòng tắm. |
![]() |
| Ngôi nhà được xây dựng theo kết cấu cơ bản là dạng hộp đơn giản, được thiết kế có tính đến tiền chế, sử dụng công trình xây dựng tiêu chuẩn địa phương - khung bê tông cốt thép với khối xây - do thiếu nguồn đúc sẵn tại địa phương, kích thước nhỏ và sử dụng không gian hiệu quả, đặc biệt là tiết kiệm chi phí nhất có thể. |
![]() |
![]() |
![]() |
| Để ứng phó với khí hậu đặc trưng của Đà Nẵng là nóng và ẩm, KTS sử dụng phương pháp riêng để che nắng cho các khe hở và đường bao xây của nhà. Đồng thời, KTS thiết kế nhiều khoảng trống giữa các không gian để các luồng gió làm mát có thể thổi theo chiều ngang xung quanh và qua lõi trung tâm của ngôi nhà, cũng như gió có thể thổi theo chiều dọc từ cầu thang lên mái nhà. |
![]() |
| Do gia chủ không muốn ngôi nhà cầu kỳ, phức tạp nên KTS sử dụng bê tông đổ tại chỗ thành các dạng ván ép phủ cho ngôi nhà. |
![]() |
| Các đường điện và hệ thống ống nước được giấu bên dưới hoặc bên trong các tấm sàn và trong các bức tường hốc xây. |
![]() |
| Các vách ngăn AAC cách nhiệt chèn kín khung bê tông giúp giảm thiểu sự truyền nhiệt. |
![]() |
![]() |
| Gỗ cứng nhiệt đới được sử dụng để làm cửa trượt và có mái che, đồ nội thất và các tấm chắn có thể điều chỉnh bằng gỗ. |
![]() |
![]() |
| Không gian phòng khách đơn giản mà tinh tế, tràn ngập ánh sáng nhờ sử dụng cửa kính trong. |
![]() |
![]() |
| Không gian phòng ngủ đơn giản, hướng tới sự nghỉ dưỡng. |
![]() |
![]() |
![]() |
| Bản vẽ thiết kế của ngôi nhà. |


















