![]() |
| Ngôi nhà này mang tên DHY, là món quà mà một nữ thiết kế thời trang nổi tiếng xây tặng mẹ ở Thái Nguyên. |
![]() ![]() |
| Ngôi nhà được hình thành bởi sự kết hợp và sắp xếp các công năng sử dụng có không gian và hiên nhà/đệm với các tỷ lệ khác nhau. |
![]() |
| Điểm nhấn của ngôi nhà là hiên - một dạng vùng đệm tuyệt vời cho bất kỳ ngôi nhà nào. Không kể bên trong hay bên ngoài, hiên có thể coi là một trong những không gian kiến trúc “con người” nhất, đậm chất nhất trong các ngôi nhà dân gian, đặc biệt là ở Bắc Bộ. |
![]() ![]() |
| Vùng đệm không còn là điều xa lạ với những ngôi nhà tự làm từ xưa. Khi chưa có điều hòa, quạt máy, người dân qua nhiều đời đã đúc rút kinh nghiệm để có thể thích nghi với khí hậu nhiệt đới nóng ẩm ở Việt Nam khi xây nhà: hướng gió mát; sử dụng hiên sâu; lưới; bức tường dày; trồng cây đại thụ tạo bóng mát; mặt nước… Tất cả là những yếu tố tạo nên không gian đệm, mang lại nhiều giá trị cho không gian sống bên trong DHY. |
![]() ![]() |
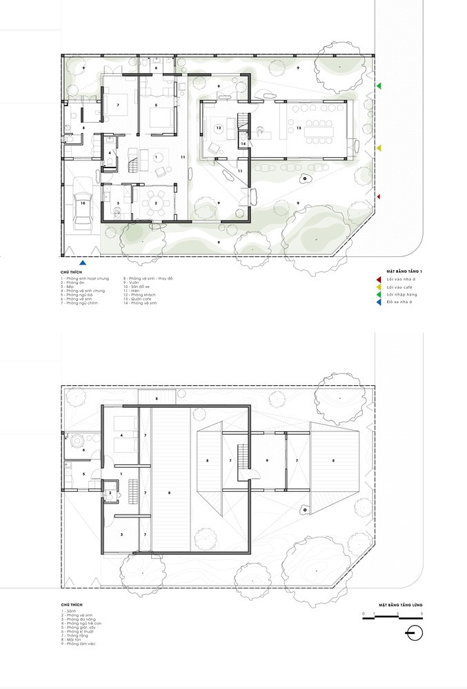
| Bức tường bê tông kích thước 12x12x7m là yếu tố tạo hình cũng như phân chia chức năng giữa khu vực công cộng (quán cà phê) bên ngoài và khu vực riêng tư (nhà ở) bên trong. |
![]() ![]() ![]() ![]() |
| Toàn bộ công năng không gian sống được gói gọn trong thể tích 1008m3 phía sau bức tường bê tông, được bảo vệ và che chở bởi hệ thống mái dốc với phần mái hạ thấp (2m) với các cao độ khác nhau, tùy theo hướng nắng, hướng gió của khối nhà đó. . |
![]() ![]() ![]() ![]() |
| Nhà ĐHY gần như có 4 mặt thoáng do có khoảng lùi với gờ. Kết hợp với các khu vực sinh hoạt chính được lùi sâu và được che phủ bởi hệ mái dốc, khoảng sân rợp bóng cây. |
![]() ![]() ![]() ![]() |
| Toàn bộ không gian sống của DHY house đều có thể mở, kết hợp với hệ thống quạt trần và thông gió tự nhiên, gia chủ có thể không cần đến điều hòa trong những ngày nóng nhất. |
![]() ![]() |
| Nhờ thiết kế ấn tượng mà ngôi nhà sau khi hoàn thành khiến ai đi qua cũng phải ngắm nhìn. |





















