![]() |
| Ngôi nhà này nằm trong một phường nhỏ ở tỉnh Đồng Nai, chủ sở hữu là một kỹ sư phần mềm trẻ và anh muốn dành tặng ngôi nhà cho mẹ và em gái. |
![]() |
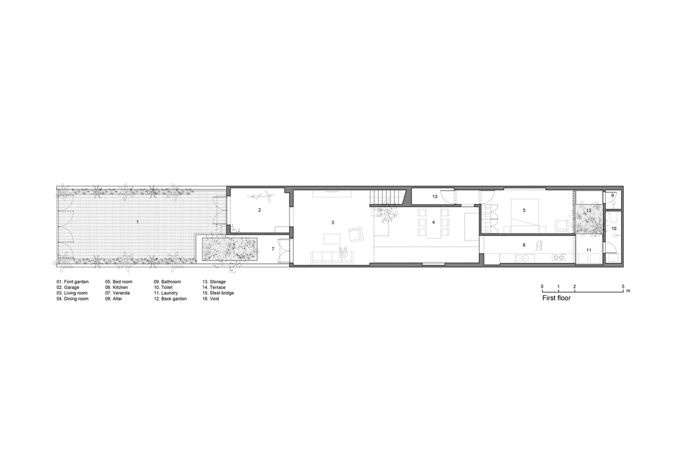
| Yêu cầu của gia chủ là kết nối mọi người trong nhà với khu vực bàn thờ vì họ luôn muốn thể hiện sự tôn kính với ông bà, tổ tiên. |
![]() ![]() |
| Trước yêu cầu của gia chủ, các kiến trúc sư đã thiết kế ngôi nhà với hai ô riêng dành cho phòng ngủ và một số không gian phụ trợ. |
![]() |
| Bên ngoài những không gian riêng là không gian chung, nơi có thể tập hợp nhiều người vào một số ngày lễ truyền thống của Việt Nam. |
![]() |
| Ở giữa khu vực phòng ngủ và phòng thờ là một khoảng trống lớn với chức năng là phòng ăn. |
![]() ![]() |
| Các kiến trúc sư thiết kế hai ban công trong hai khu vực trong nhà vươn ra khoảng trống lớn để mọi người có thể dễ dàng kết nối và tận hưởng không gian thoáng mát. |
![]() |
| Để kết nối hai khu vực chung và riêng, kiến trúc sư thiết kế một cây cầu thép thay vì hành lang bê tông. |
![]() |
| Để mang đến không gian gần gũi, các kiến trúc sư sử dụng vật liệu mang màu sắc gần gũi với thiên nhiên. |
![]() ![]() |
| Kiến trúc sư sử dụng đá tự nhiên, khối bê tông và gạch thô để làm mặt tiền tạo sự đơn giản và gần gũi, không bị quá nổi bật so với những ngôi nhà xung quanh. |
![]() ![]() |
| Kiến trúc sư bố trí bàn thờ ở ban công hướng ra phía trước nhà nên khi vào nhà mọi người có thể dễ dàng nhìn thấy bàn thờ trên ban công tầng 2. |
![]() ![]() |
| Để lấy ánh sáng tự nhiên vào nhà, kiến trúc sư cho xây dựng 2 giếng trời phía trên 2 ban công tại khoảng trống rộng của ngôi nhà và tia nắng sẽ chiếu trực tiếp vào 2 ban công này. |
![]() ![]() ![]() ![]() |
| Nhờ hai giếng trời mà người sống trong nhà có thể cảm nhận được thời gian trong ngày, cảm nhận được buổi bình minh với những tia nắng sớm, buổi hoàng hôn với nắng chiều, buổi tối với trăng sao và cả những cơn mưa. |



















