![]() |
![]() |
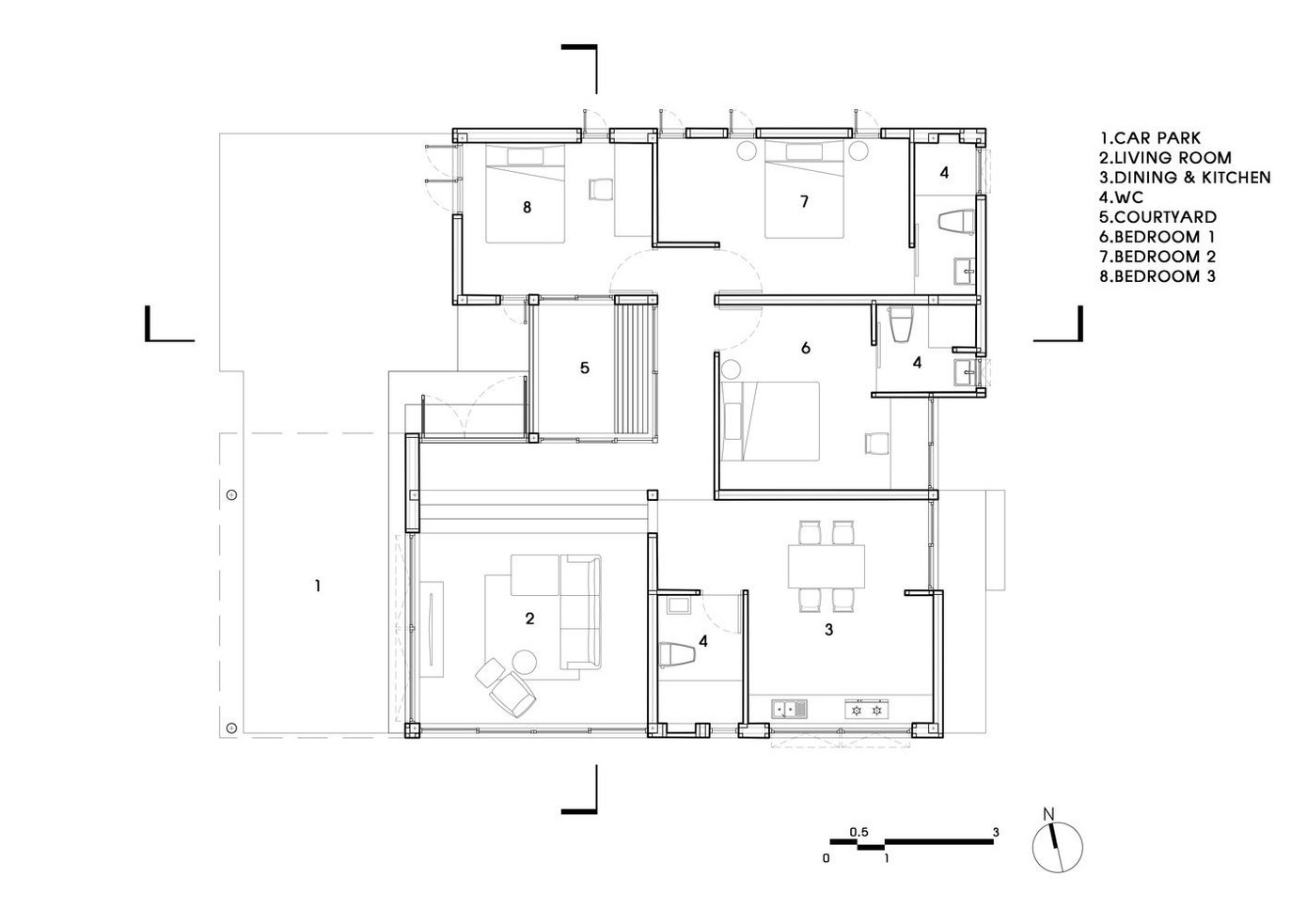
| Ngôi nhà này mang tên TSR3, có diện tích 135m2, là nơi sinh sống của 2 người lớn và 3 con chó nằm trong khu dân cư đông đúc ở tỉnh Nakhon Ratchasima (Thái Lan). |
![]() |
![]() |
| Theo yêu cầu của gia chủ, các không gian sống được bố trí đơn giản theo nhu cầu bao gồm gara, phòng khách, bếp, 3 phòng ngủ và 3 phòng vệ sinh. |
![]() |
| Cấu trúc ngôi nhà được làm theo dạng nhà cấp 4 mái bằng hình chữ U. Phần sân phía trước nhà lát đá đen và có mái che cho ô tô. |
![]() |
![]() |
| Ở cạnh đầu tiên của chữ U là không gian phòng khách và phòng bếp. Phòng khách được bày trí rất đơn giản với một bộ sofa màu nâu và kệ ti vi. Điểm đặc biệt của phòng khách là có cửa sổ bằng kính lớn để ánh sáng tràn vào nhà và hệ thống ô thoáng sát chân tường để người ngồi trong nhà có thể quan sát được người ở phía ngoài sân. |
![]() |
| Phòng khách và bếp được ngăn cách bằng một kệ bày tượng phật. Trong bếp cũng có hệ thống ô thoáng để cung cấp ánh sáng và thông gió tự nhiên. |
![]() |
![]() |
| Cạnh còn lại của chữ U là khu vực của 3 phòng ngủ. Các phòng ngủ đều bố trí nhiều ô thoáng để không gian luôn tràn ngập ánh sáng. |
![]() |
![]() |
| Hai cạnh của chữ U liên kết với nhau thông qua khoảng sân giữa nhà. Sân giữa này có tác dụng đón nắng và gió vào nhà đồng thời là nơi thư giãn của gia chủ và 3 chú chó. |
![]() |
![]() |
![]() |
| Phần sân giữa này ngăn cách với thế giới bên ngoài bằng bức tường gạch đỏ xây theo dạng lưới, đây cũng chính là điểm nhấn của tổng thể ngôi nhà có sơn ngoại thất màu trắng. |
![]() |
![]() |
| Tất cả các cửa trong nhà đều là cửa kính trong suốt có rèm che để ngôi nhà luôn tràn ngập ánh sáng và thông thoáng. |
![]() |
| Bên cạnh việc ưu tiên sử dụng nội thất màu nâu để không gian thêm ấm cúng, gia chủ còn đặt nhiều chậu cây xanh trong nhà để tăng thêm sinh khí. |
![]() |
| Theo các kiến trúc sư, thiết kế nhà cấp 4 mái bằng đơn giản và tối giản về trang trí như thế này rất phù hợp cho các gia đình có nhiều người trẻ, thích sự trẻ trung, năng động nhưng vẫn đảm bảo tiết kiệm và yên tĩnh. |


















