![]() |
| LVS house tọa lạc tại TP Hồ Chí MInh, có mặt tiền uốn cong độc đáo. |
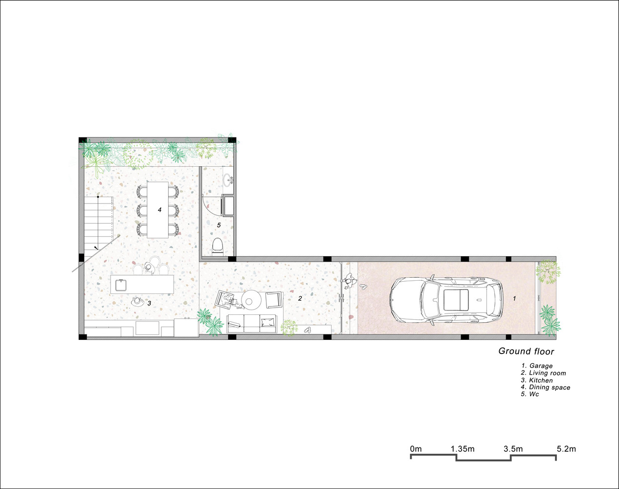
LVS house có một sự khác biệt so với các nhà ống khác ở mặt bằng khu đất. Ngôi nhà có bề ngang hẹp nhưng lại có một khoảng diện tích rộng ở phần sau, trông giống như chữ L. Điều này mở ra hướng phát triển không gian thú vị cho công trình.
![]() |
| Không gian sinh hoạt chung được thiết kế mở, tạo sự kết nối giữa các thành viên trong gia đình. |
![]() |
| Bậc thang chuyển tiếp giữa các tầng được thiết kế ngắn và thoai thoải, khiến các tầng không bị cách biệt nhưng vẫn đảm bảo tính riêng tư. |
![]() |
| Mặt bằng ngôi nhà tầng trệt. |
![]() |
| Mặt cắt ngôi nhà. |
Gia chủ mong muốn toàn bộ không gian sinh hoạt chung hay cá nhân đều mở tối đa và tạo được sự kết nối tốt nhất, ngoài ra cũng có thể quan sát các hoạt động của 2 con ở độ tuổi còn nhỏ.
![]() |
| Tông màu nâu - trắng sang trọng kết hợp với khoảng xanh dương tạo sự thư giãn, nhẹ nhàng. |
![]() |
| Bức vẽ hình tròn và lọ hoa tím tô điểm cho căn phòng ngủ thêm ấm cúng. |
![]() |
| Nơi vui chơi cho trẻ nhỏ rộng rãi, thoáng mát. |
Ngoài giải pháp lệch tầng, KTS khai thác ánh sáng, thông gió tự nhiên theo phương đứng. Các khoảng không gian chuyển tiếp hay giếng trời tạo nên các lớp kết nối con người và thiên nhiên.
![]() |
| Thông gió tự nhiên đi vào nhà theo hệ giếng trời. |
![]() |
| Mặt bằng ngôi nhà tầng 1. |
![]() |
| Mặt bằng ngôi nhà tầng 2. |
Ở công trình này, vật liệu được sử dụng gần như tối giản, 90% là đá mài/Terrazzo với mong muốn tìm thấy những thẩm mỹ chân phương của kiến trúc và tạo ra một đời sống mới tích cực, tốt đẹp hơn cho gia đình.
![]() |
| Ngôi nhà được thiết kế với mong muốn mang lại một cuộc sống nhiều niềm vui cho gia đình. |











