![]() |
| Nhà D9 có 3 tầng, tổng diện tích sàn là 560m2, tọa lạc tại TP Hồ Chí Minh. |
Nhà D9 được xây dựng trên mảnh đất có diện tích 207m2. Thiết kế gồm 3 tầng, với bốn phòng ngủ, và các phòng chức năng khác như gara, phòng khách, phòng ăn, bếp,… Tổng diện tích sàn là 560m2.
![]() |
| Không gian mở trong ngôi nhà mang đến sự thông gió tự nhiên. |
![]() |
| Phòng khách đầy đủ tiện nghi là nơi đón tiếp và tụ tập bạn bè của gia chủ. |
![]() |
| Phòng khách, phòng bếp, bàn ăn liên thông với nhau, tạo sự kết nối giữa các thành viên trong gia đình. |
![]() |
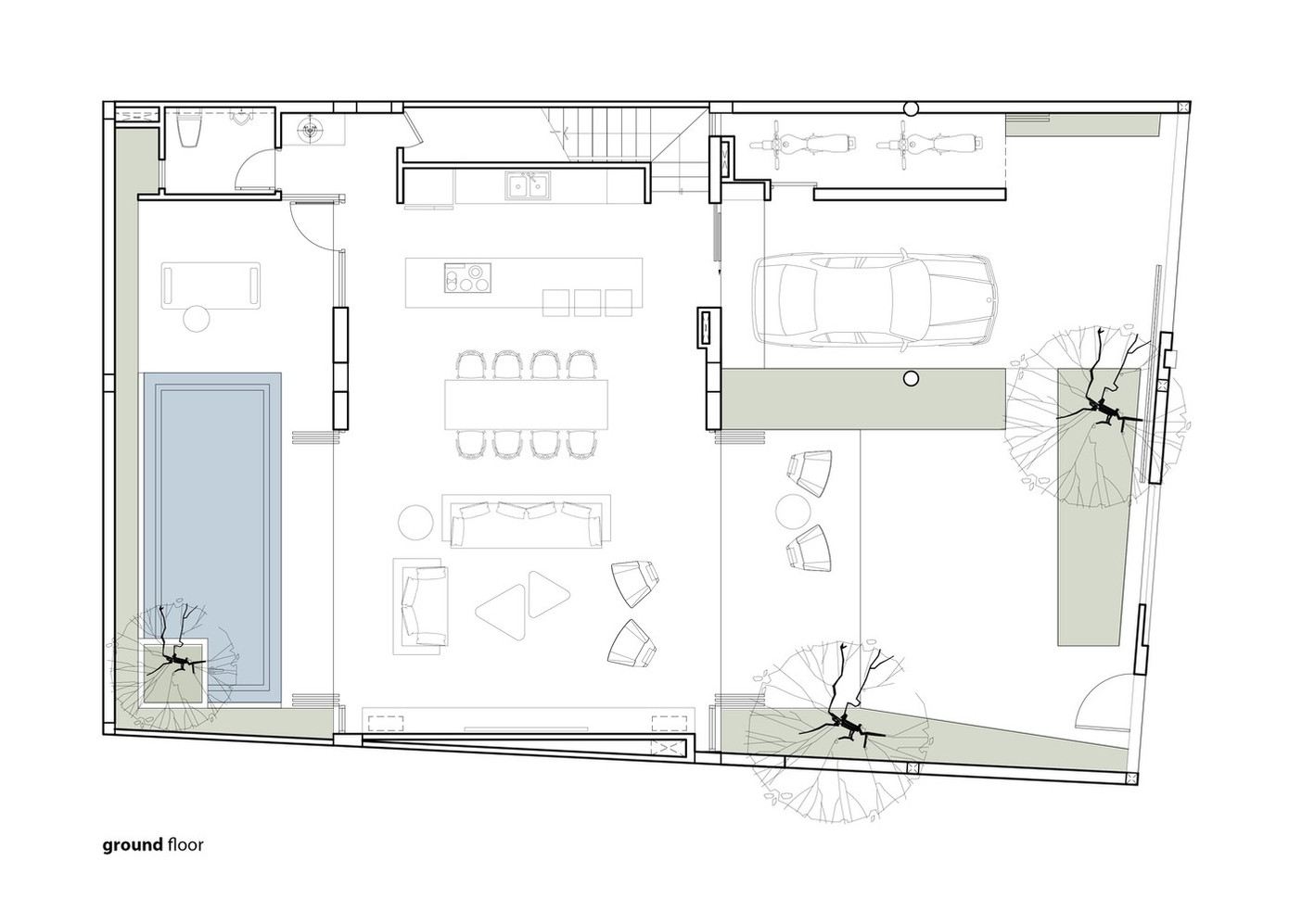
| Mặt bằng tầng trệt ngôi nhà. |
Toàn bộ tầng trệt là không gian sinh hoạt chung của gia đình, gồm phòng khách, phòng bếp, bàn ăn. Đây cũng không gian được khai thác linh hoạt, để làm nơi tiệc tùng và tụ tập bạn bè. Nhà để xe cũng được kết hợp với các khu vực bên trong khác để mở rộng hơn nữa không gian sống.
![]() |
| Ánh sáng kết hợp kiến trúc khối tạo nên những ấn tượng khó quên về không gian của nhà D9. |
![]() |
| Tông màu trắng kết hợp nâu trầm và đen mang đến vẻ đẹp hiện đại cho ngôi nhà. |
![]() |
| Khu vực đệm ở ngay cầu thang dành cho các sinh hoạt chung của gia đình. |
![]() |
| Phòng ngủ tràn ngập ánh sáng, khiến không gian thêm ấm áp. |
![]() |
| Mặt bằng tầng 2 ngôi nhà. |
Tầng thứ 2 có 3 phòng ngủ, tất cả đều có góc tiếp xúc tự nhiên tùy vị trí. Khu vực đệm ở ngay cầu thang trở thành khu vực sinh hoạt chung ở trên lầu. Phần diện tích còn lại vừa đủ để thêm một phòng ngủ nữa. Thiết kế trong phòng ngủ cũng theo tinh thần tối giản như khu vực tầng trệt.
Bức tường chính ở đầu giường làm bằng vật liệu đá tự nhiên. Ánh sáng được tích hợp để cân bằng và mang lại cảm giác ấm áp cần thiết cho không gian ngủ.
![]() ![]() |
| Ban công kính mở ra tầm nhìn thoáng đãng phía trước nhà. |
![]() |
| Cây xanh mang đến không khí trong lành cho ngôi nhà. |
![]() |
| Khu vực cây xanh kết hợp hồ nước ngọt là nơi thư giãn nghỉ ngơi. |
![]() |
| Sân trước là một khu vườn thu nhỏ với đa dạng cây trái. |
![]() |
| Cửa kính đẩy thay thế các bức tường, tạo nên sự thông thoáng tự nhiên. |
Ngôi nhà còn có những khu vực cây xanh, cùng với một hồ nước ngọt. Khu vực này dùng để làm nơi thư giãn và nghỉ ngơi cho chủ nhà. Các bức tường được thay thế bằng cửa kính đẩy, giúp ngôi nhà luôn thông thoáng. Không khí trong lành và ánh sáng tự nhiên luôn có thể len lỏi vào các phòng chức năng với loại cửa kính này.
![]() |
| Khu vườn phía sau kết hợp với giàn dây leo khiến khu vực tầng trệt gần gũi với thiên nhiên hơn. |
![]() |
| Giàn dây leo lên được trang trí phía sau tầng 2 và 3, tạo khung cảnh xanh cho các phòng ngủ. |
Khu vườn phía sau với giàn dây leo không chỉ mang lại cảm giác gần gũi với thiên nhiên cho không gian sinh hoạt chung ở tầng trệt mà còn tạo ra một khung cảnh xanh cho các phòng ngủ ở tầng trên.
Nhà D9 được thiết kế và xây dựng trên tinh thần tối giản, nội thất được lựa chọn kĩ càng với những đường nét rõ ràng, ít chi tiết và số lượng vừa phải.
![]() |
| Không gian "xanh" vừa tạo điểm nhấn, vừa là nơi thư giãn của gia chủ. |
Nếu toàn bộ khu tầng trệt là để dùng cho không gian sinh hoạt chung thì các tầng còn lại là không gian riêng tư cho các thành viên trong gia đình. Không gian “xanh” mát mẻ vừa là điểm nhấn tăng vẻ đẹp cho ngôi nhà vừa là nơi để gia chủ thư giãn và tận hưởng cuộc sống.


















