![]() ![]() |
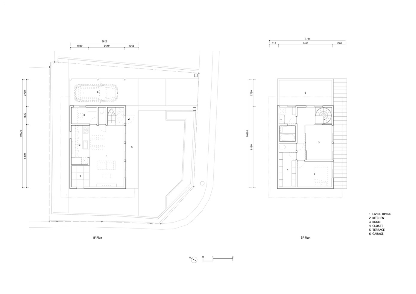
| Ngôi nhà này là tổ ấm của một gia đình gồm 3 thành viên với bối cảnh xung quanh là những ngôi nhà mang đặc trưng của vùng Okinawa (Nhật Bản) với phần mái gần như bằng phẳng và có phần hiên lớn đua ra giúp giảm bớt tác động gay gắt của ánh nắng mặt trời. |
![]() |
| Vật liệu gỗ được sử dụng để xây dựng kết cấu chính của ngôi nhà nhằm phù hợp với môi trường xung quanh và đáp ứng chi phí của gia chủ. |
![]() ![]() ![]() ![]() |
| Sân vườn của ngôi nhà nằm ở hướng Nam trong khi gara để xe ở hướng Đông. |
![]() ![]() |
| Để tạo ra những bóng râm che nắng cho ngôi nhà, kiến trúc sư mở rộng khu vực nhà kho ở tầng một và phần hiên đua ra ở tầng hai. |
![]() ![]() ![]() ![]() |
| Màu sắc chủ đạo của ngôi nhà được định hướng theo tông xám trong khi dầm và đồ nội thất bằng gỗ giữ nguyên màu sắc để tạo cảm giác ấm cúng và bình yên cho không gian. |
![]() ![]() ![]() ![]() |
| Sự kết hợp giữa vật liệu gỗ với các bảng tường bê tông màu xám tưởng như khác biệt lại giúp ngôi nhà có một không gian đồng nhất và ấn tượng. |














