Google News

Thiết kế sáng tạo của nhà mái kép 62m2 trên ô đất nhỏ hẹp ở TPHCM

Thiết kế sáng tạo của nhà mái kép 62m2 trên ô đất nhỏ hẹp ở TPHCM
TPO - Gia chủ khẳng định hệ thống mái thái kép mang đến cho người trong nhà sự thoải mái tuyệt vời vào những ngày hè tại TP. Hồ Chí Minh.
Ngôi nhà lợp mái kép hình có diện tích 62m2, là nơi sinh sống và kinh doanh đồ uống của gia đình 3 người.

Ngôi nhà lợp mái kép hình có diện tích 62m2, là nơi sinh sống và kinh doanh đồ uống của gia đình 3 người.

Ngôi nhà sử dụng hệ thống mái thái kép bằng tấm tôn, vừa nhẹ vừa có khả năng cách nhiệt tuyệt vời. Bởi nếu hai lớp mái cách nhau một đoạn, không khí ở khu vực này sẽ được thông gió và góp phần giảm luồng nhiệt vào nhà.

Ngôi nhà sử dụng hệ thống mái thái kép bằng tấm tôn, vừa nhẹ vừa có khả năng cách nhiệt tuyệt vời. Bởi nếu hai lớp mái cách nhau một đoạn, không khí ở khu vực này sẽ được thông gió và góp phần giảm luồng nhiệt vào nhà.

Gia chủ khẳng định hệ thống mái thái kép mang đến cho người trong nhà sự thoải mái tuyệt vời trong những ngày hè tại TP.Hồ Chí Minh. Vì nằm trên diện tích đất dài và hẹp nên căn nhà lùi sâu vào trong, khoảng đất phía mặt đường được thiết kế làm sân và nơi bán nước. Ở tầng trệt, cửa trước được thiết kế rộng để người mua nước có thể vào ngồi nếu như ngoài sân không còn chỗ. Phía sau phòng khách còn có một phòng ngủ nhỏ dành cho khách đến chơi nhà và ngủ lại qua đêm. Cầu thang nhà vòng qua một cây khế được trồng bên dưới giếng trời để ngôi nhà vừa có ánh nắng vừa có sự xanh mát của cây cối. Phòng ngủ chính ở tầng 1 có cửa sổ lớn, góc đọc sách nhìn ra giếng trời cũng như phòng học của con trai. Để tối đa hóa không gian sống và tạo nơi giải trí cho cậu con trai nhỏ, gia chủ thiết kế phòng ngủ, phòng học và phòng chơi của cậu bé ở các vị trí lệch tầng. Điều này dẫn đến hai ban công của hai tầng nhà nằm lệch nhau và cùng nhìn ra phía sân trước. Ngôi nhà sử dụng sơn ngoại thất màu trắng kết hợp với màu vàng của cầu thang và màu xanh tự nhiên của cây cối. Toàn cảnh ngôi nhà. Bản vẽ sơ bộ của ngôi nhà. Bản vẽ thiết kế của phần mái Bản vẽ thiết kế của tầng 1 (1: Nơi bán cà phê; 2: Phòng bếp; 3: Phòng ngủ: 4: Phòng vui chơi).

Gia chủ khẳng định hệ thống mái thái kép mang đến cho người trong nhà sự thoải mái tuyệt vời trong những ngày hè tại TP.Hồ Chí Minh.

Vì nằm trên diện tích đất dài và hẹp nên căn nhà lùi sâu vào trong, khoảng đất phía mặt đường được thiết kế làm sân và nơi bán nước.

Vì nằm trên diện tích đất dài và hẹp nên căn nhà lùi sâu vào trong, khoảng đất phía mặt đường được thiết kế làm sân và nơi bán nước.

Ở tầng trệt, cửa trước được thiết kế rộng để người mua nước có thể vào ngồi nếu như ngoài sân không còn chỗ. Phía sau phòng khách còn có một phòng ngủ nhỏ dành cho khách đến chơi nhà và ngủ lại qua đêm.

Ở tầng trệt, cửa trước được thiết kế rộng để người mua nước có thể vào ngồi nếu như ngoài sân không còn chỗ. Phía sau phòng khách còn có một phòng ngủ nhỏ dành cho khách đến chơi nhà và ngủ lại qua đêm.

Cầu thang nhà vòng qua một cây khế được trồng bên dưới giếng trời để ngôi nhà vừa có ánh nắng vừa có sự xanh mát của cây cối.

Cầu thang nhà vòng qua một cây khế được trồng bên dưới giếng trời để ngôi nhà vừa có ánh nắng vừa có sự xanh mát của cây cối.

Phòng ngủ chính ở tầng 1 có cửa sổ lớn, góc đọc sách nhìn ra giếng trời cũng như phòng học của con trai. Để tối đa hóa không gian sống và tạo nơi giải trí cho cậu con trai nhỏ, gia chủ thiết kế phòng ngủ, phòng học và phòng chơi của cậu bé ở các vị trí lệch tầng. Điều này dẫn đến hai ban công của hai tầng nhà nằm lệch nhau và cùng nhìn ra phía sân trước. Ngôi nhà sử dụng sơn ngoại thất màu trắng kết hợp với màu vàng của cầu thang và màu xanh tự nhiên của cây cối. Toàn cảnh ngôi nhà. Bản vẽ sơ bộ của ngôi nhà. Bản vẽ thiết kế của phần mái Bản vẽ thiết kế của tầng 1 (1: Nơi bán cà phê; 2: Phòng bếp; 3: Phòng ngủ: 4: Phòng vui chơi).

Phòng ngủ chính ở tầng 1 có cửa sổ lớn, góc đọc sách nhìn ra giếng trời cũng như phòng học của con trai.

Để tối đa hóa không gian sống và tạo nơi giải trí cho cậu con trai nhỏ, gia chủ thiết kế phòng ngủ, phòng học và phòng chơi của cậu bé ở các vị trí lệch tầng. Điều này dẫn đến hai ban công của hai tầng nhà nằm lệch nhau và cùng nhìn ra phía sân trước. Ngôi nhà sử dụng sơn ngoại thất màu trắng kết hợp với màu vàng của cầu thang và màu xanh tự nhiên của cây cối. Toàn cảnh ngôi nhà. Bản vẽ sơ bộ của ngôi nhà. Bản vẽ thiết kế của phần mái Bản vẽ thiết kế của tầng 1 (1: Nơi bán cà phê; 2: Phòng bếp; 3: Phòng ngủ: 4: Phòng vui chơi).

Để tối đa hóa không gian sống và tạo nơi giải trí cho cậu con trai nhỏ, gia chủ thiết kế phòng ngủ, phòng học và phòng chơi của cậu bé ở các vị trí lệch tầng. Điều này dẫn đến hai ban công của hai tầng nhà nằm lệch nhau và cùng nhìn ra phía sân trước.

Ngôi nhà sử dụng sơn ngoại thất màu trắng kết hợp với màu vàng của cầu thang và màu xanh tự nhiên của cây cối. Toàn cảnh ngôi nhà. Bản vẽ sơ bộ của ngôi nhà. Bản vẽ thiết kế của phần mái Bản vẽ thiết kế của tầng 1 (1: Nơi bán cà phê; 2: Phòng bếp; 3: Phòng ngủ: 4: Phòng vui chơi).
Ngôi nhà sử dụng sơn ngoại thất màu trắng kết hợp với màu vàng của cầu thang và màu xanh tự nhiên của cây cối.
Toàn cảnh ngôi nhà. Bản vẽ sơ bộ của ngôi nhà. Bản vẽ thiết kế của phần mái Bản vẽ thiết kế của tầng 1 (1: Nơi bán cà phê; 2: Phòng bếp; 3: Phòng ngủ: 4: Phòng vui chơi).

Toàn cảnh ngôi nhà.

Bản vẽ sơ bộ của ngôi nhà.

Bản vẽ sơ bộ của ngôi nhà.

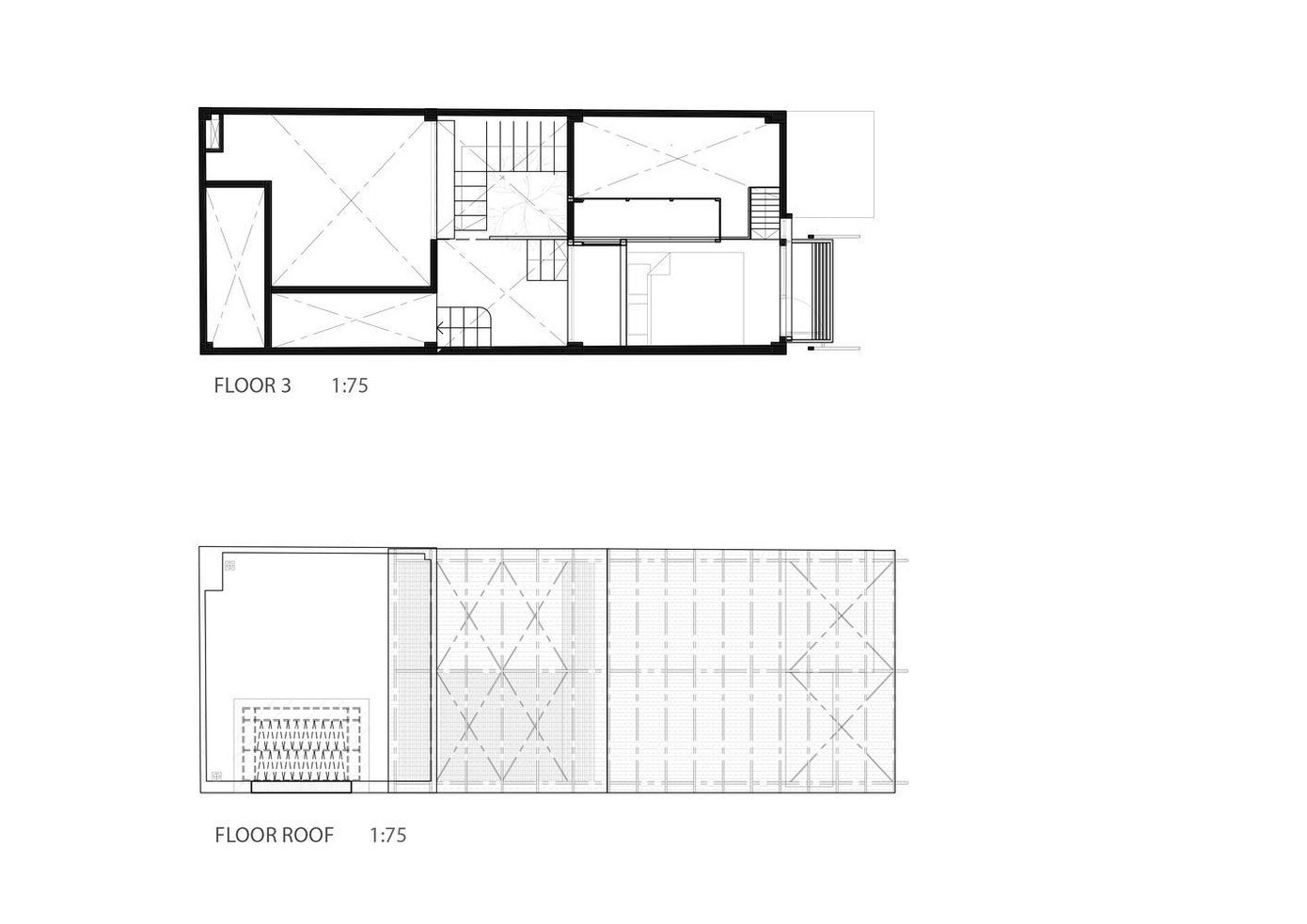
Bản vẽ thiết kế của phần mái

Bản vẽ thiết kế của phần mái

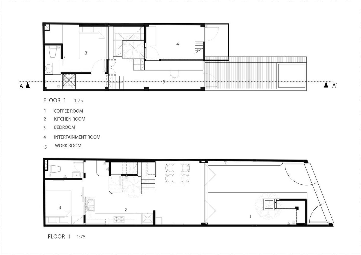
Bản vẽ thiết kế của tầng 1 (1: Nơi bán cà phê; 2: Phòng bếp; 3: Phòng ngủ: 4: Phòng vui chơi).

Bản vẽ thiết kế của tầng 1 (1: Nơi bán cà phê; 2: Phòng bếp; 3: Phòng ngủ: 4: Phòng vui chơi).