Google News

Thiết kế tiện nghi mà tiết kiệm trong căn hộ gia đình trẻ

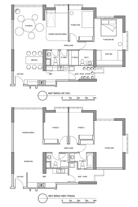
Căn nhà 3 phòng ngủ ở huyện Nhà Bè, TP HCM, của một gia đình trẻ được cải tạo lại cá tính nhưng vẫn đảm bảo công năng tiện dụng. Công năng sử dụng và tính tiện nghi của căn hộ được nâng cao nhờ vào các giải pháp thiết kế thông minh và tiết kiệm. 
Ý tưởng đầu tiên của KTS Tạ Vĩnh Phúc (P+P Design & Construction) và chủ nhà là tháo dỡ hệ trần thạch cao cũ vốn khá rối rắm để lộ ra bề mặt trần bê tông xám thô ráp. Chính điều này giúp cho căn hộ có được không gian cao và thoáng hơn nhiều so với thông thường. Mặc khác, bề mặt vật liệu bê tông trần và sàn gỗ màu xám cũng tương phản mạnh mẽ với các vách tường và vật dụng nội thất màu trắng giúp tạo nên cảm xúc thực sự mới lạ và đầy cá tính.
Công năng sử dụng và tính tiện nghi của căn hộ được nâng cao nhờ vào các giải pháp thiết kế thông minh và tiết kiệm. Phòng khách, phòng ăn và bếp có bố trí mở mang chất hiện đại, phóng khoáng và giàu cảm xúc với bàn ăn màu đỏ là điểm nhấn thị giác ấn tượng.
Phòng khách thoáng rộng và có tầm nhìn đẹp ra cảnh quan bên ngoài. Những chiếc gối lười được sử dụng thay cho sofa phòng khách truyền thống để dễ dàng di chuyển và thân thiện hơn với trẻ nhỏ.
Tính chất linh hoạt và đa năng của không gian được kiến trúc sư áp dụng sáng tạo. Phòng ngủ thứ ba ban đầu được thay đổi để trở thành không gian vui chơi của trẻ nhỏ hoặc là phòng sinh hoạt chung của gia đình nối liền với phòng khách và phòng ăn.
Bên cạnh đó, không gian đa năng này có thể biến đổi thành một phòng ngủ phụ cho người giúp việc hoặc khách ngủ qua đêm nhờ thiết kế vật dụng nội thất thông minh và hệ màn vải linh hoạt.
Bức tường sơn trắng ở phòng đa năng cũng là màn chiếu phim lớn cho nhu cầu giải trí tại gia với máy chiếu thông dụng. Ngoài ra, thiết kế linh hoạt còn được thể hiện ở những vật dụng nội thất như bàn ăn có bánh xe để dễ dàng di chuyển hay sân phơi tận dụng làm chỗ cho những loại cây cảnh sinh động và dễ chăm sóc.
Kiến trúc sư thiết kế các vách tường là nơi trưng bày mang tính nghệ thuật như bức tường treo bộ hình phong cảnh đẹp do chính chủ nhân thực hiện. Vách kính ốp tường bếp cũng tích hợp với hình panorama gắn bó với những nơi chốn kỷ niệm của chủ nhà.
Phòng ngủ trẻ em có tông màu trung tính làm nền cho các món đồ chơi hay chăn ga màu sắc sinh động và dễ dàng thay đổi. Phòng vệ sinh ban đầu được chia thành phòng tắm và phòng vệ sinh riêng biệt để tăng tính tiện nghi, đặc biệt là với một gia đình có con nhỏ. Các cửa sổ và vách kính được bổ sung thay thế cho các vách tường gạch để lấy sáng và thông thoáng tự nhiên vào phòng tắm, vệ sinh và bếp.
Bộ chăn ga màu đỏ làm điểm nhấn thị giác cho phòng ngủ chính có phong cách tối giản với các tông trắng, đen và xám. Rèm vải và tường màu trắng tương phản với chất liệu sàn gỗ và bê tông trần. Bệ cửa sổ lớn ốp đá trắng cũng là nơi thư giãn với tầm nhìn rộng mở ra cảnh quan thiên nhiên bên ngoài.
Một chi tiết đặc biệt nữa là vách đầu giường cũng là hệ cửa gỗ linh hoạt che cửa sổ với hình chụp chân dung các nữ diễn viên mà chủ nhân căn hộ yêu thích.
Phòng ngủ chính và phòng thay đồ được ngăn chia khéo léo bởi hệ rèm voan trắng nhẹ nhàng và linh hoạt nhằm đáp ứng tính chất sang trọng, tiện nghi và đồng thời cũng mang lại nhiều cảm xúc.
Phòng tắm chính được cải tạo lại với các ô cửa sổ ngang tạo tầm nhìn sinh động ra khoảng sân vườn cây xanh bên ngoài, đồng thời tăng cường thông thoáng và ánh sáng tự nhiên một cách tiết kiệm nhất. Kiến trúc sư cũng đề xuất sử dụng lại một số trang thiết bị và vật liệu hiện trạng ban đầu để tiết kiệm chi phí. Hầu hết các thiết bị điện và phòng tắm được tái sử dụng lại, các cửa đi gỗ được sơn lại màu trắng để tái sử dụng trong không gian mới.

Các vật liệu nội thất mới của căn hộ cũng mang tính kinh tế cao với vật dụng nội thất bằng gỗ công nghiệp giá cả phải chăng, các bức rèm vải linh hoạt và tiện dụng thay thế cho các vách tường và cửa, hệ thống đường ống kỹ thuật cũng được tính toán để tiết kiệm chi phí nhất. Giải pháp thiết kế của căn hộ này là một khoản đầu tư hợp lý với khả năng tài chính của chủ nhà. Đồng thời, với phong cách thiết kế giàu cá tính, hiện đại, linh hoạt và đa năng, kiến trúc sư đã đem lại cho gia đình gia chủ một giá trị mới về lối sống và tính tiện nghi nhiều hơn so với khoản đầu tư ban đầu.