Google News

Vẻ đẹp bình dị của ngôi nhà mái ngói đất nung đỏ

TPO - Công trình được xây dựng nhằm thay thế cho ngôi nhà cũ đã xuống cấp, không còn phù hợp với nhu cầu của gia chủ. Những nét đẹp của ngôi nhà cũ đều được giữ lại để đáp ứng mong muốn của gia chủ về một không gian sống gần gũi quen thuộc, hoài niệm về nơi sinh ra và lớn lên. 

Ngôi nhà cũ đã được đập bỏ để xây mới hoàn toàn nhưng những nét đặc trưng của ngôi nhà cũ vẫn được giữ lại như tỷ lệ của mái hiên, hệ thống mái ngói, một số ô cửa và thậm chí cả những cái cây đã tồn tại ở đó từ lâu.

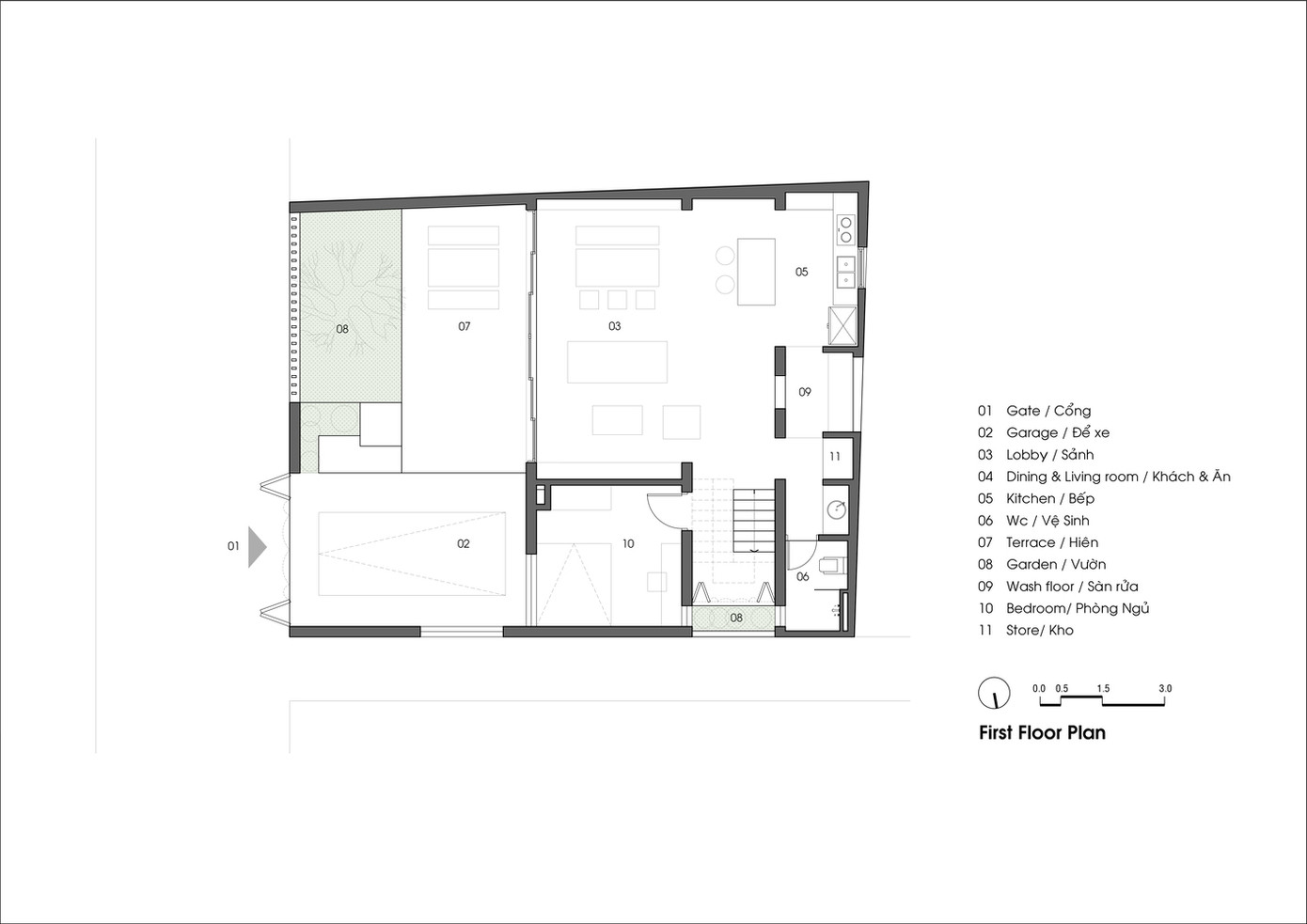
Trong kiến ​​trúc của ngôi nhà cũ, phòng khách và bếp là những không gian riêng biệt mở ra hai sân hiên khác nhau, trong thiết kế mới, một mái hiên chung dài được sử dụng để không gian chung và nhà bếp có thể thông mở, giúp không gian trở nên đơn giản hơn, gắn kết hơn và cởi mở hơn.

Điểm đặc biệt của ngôi nhà mới là giữ lại tỷ lệ và hình thức mái của ngôi nhà cũ với mái hiên cao 3 mét và hệ mái nghiêng 45 độ, lợp ngói đất nung truyền thống.

Linh hồn của kiến ​​trúc ngôi nhà cũ sẽ tiếp tục trong một kiến ​​trúc mới nhờ những chủ ý thiết kế. Những gốc cây sẵn có vẫn được giữ lại, tồn tại và phát triển bên cạnh ngôi nhà mới như một phần của gia đình gia chủ.