Google News

Vẻ đẹp thanh bình của ngôi nhà bên sông

TPO - Ngôi nhà phong cách nhiệt đới mộc mạc được xây dựng cho gia chủ đã tuổi ngũ tuần, mong muốn không gian sống êm ả, bình yên để nhẩn nha tận hưởng từng vệt nắng, từng nhịp lá cây đung đưa theo gió, mang dư vị của sông biển.

Mặt tiền ngôi nhà ba tầng hướng ra phía dòng sông thơ mộng, được thiết kế các khu vườn ban công và mái hiên đua rộng ra phía trước làm nơi nghỉ ngơi thư giãn. Nhìn từ phía ngoài ngôi nhà khá biệt lập và thanh bình với các lớp cây xanh mát, đung đưa theo gió.

Tầng 1 là không gian chung của phòng khách, bếp, khu ăn uống và một phần tiểu cảnh cây xanh trong nhà ngay dưới khoảng giếng trời thẳng cầu thang. Để tạo khoảng không gian thoáng đãng,

Xung quanh vòm cầu thang các tầng, trầu bà thân leo được trồng thả rũ tạo nên lớp rèm tự nhiên thu hút.

Các khoảng xanh được đan cài khắp các khu vực, kết hợp với ánh sáng tự nhiên lấy từ những khung cửa kính trải dài một mặt nhà cùng giếng trời, không gian trong nhà mang đậm màu sắc nhiệt đới

Các chất liệu như đá hộc, sỏi, thủy tinh, gỗ được sử dụng một cách có chiến lược vừa tạo nên tinh thần nhiệt đới vừa có tác dụng thẩm mỹ cho thiết kế.

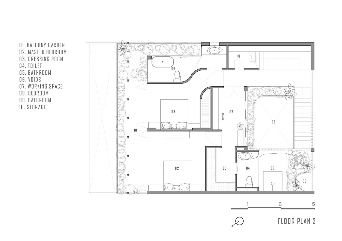
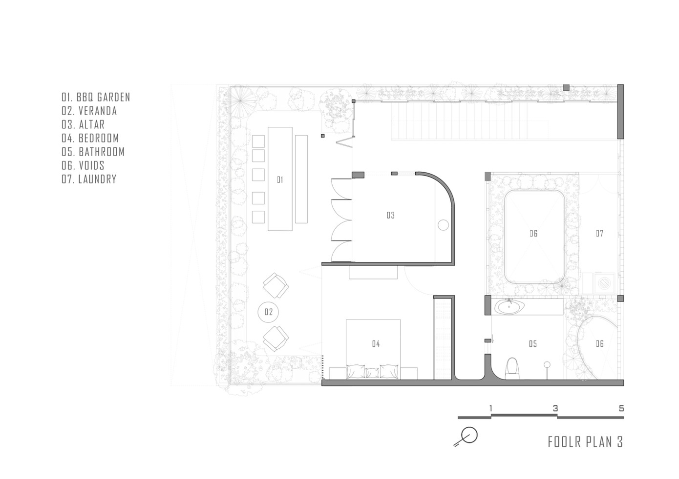
Tầng 2 và 3 là khu vực phòng ngủ, phòng tắm, khu giặt và các phần hiên để thư giãn, tiệc BBQ ngoài trời.

Khu vực hiên của các tầng đều cố ý mở rộng để khai thác triệt để cảnh quan thành phố yên bình bên cạnh dòng sông.