![]() |
| Ngôi nhà này có diện tích xây dựng 168m2, là văn phòng làm việc và nơi ở của một gia đình 4 người. Kiến trúc sư lựa chọn phong cách thiết kế hiện đại với nội thất tối giản để tạo nên một không gian vừa thoải mái làm việc, vừa giúp các thành viên trong gia đình nghỉ ngơi, thư giãn. |
![]() ![]() ![]() ![]() |
| Với lợi thế lô đất rộng 315m2, kiến trúc sư đã tạo khoảng lùi cả 4 mặt, đặc biệt là sân trước và sân sau nhằm tăng hiệu quả đón nắng và thông gió cho không gian. |
![]() |
| Hành lang, sân vườn với nhiều cây xanh giúp thanh lọc không khí, mang lại cảm giác bình yên, thoải mái cho gia đình. |
![]() ![]() |
![]() ![]() |
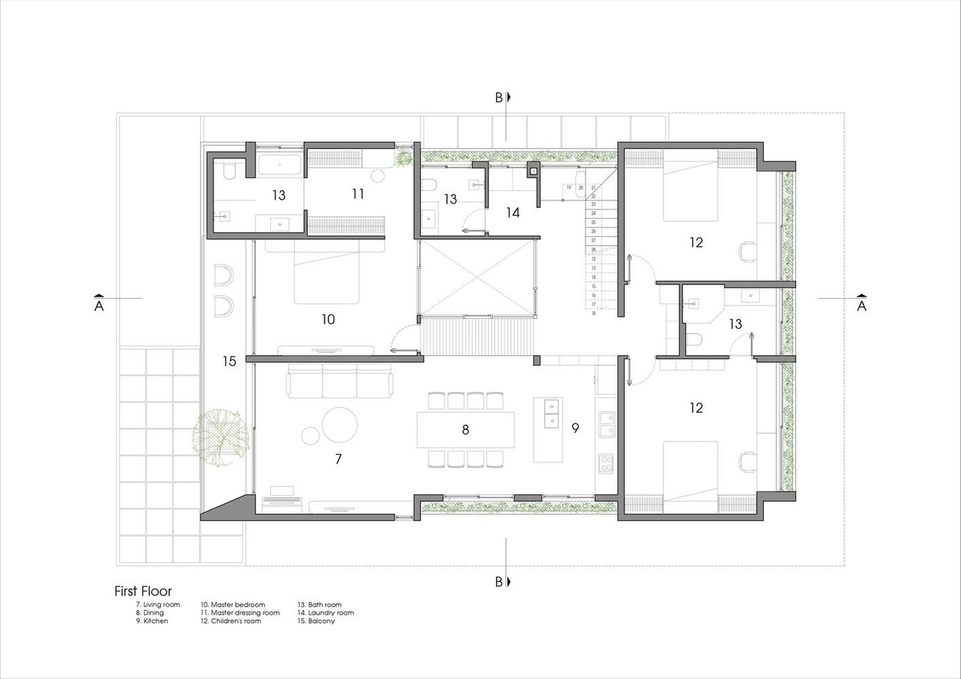
| Ngôi nhà có kết cấu 3 tầng, tầng 1 làm văn phòng, tầng 2 và 3 dành cho không gian sinh hoạt của gia đình. Để không gian sống trở nên nhẹ nhàng và thân mật hơn, kiến trúc sư sử dụng những vật liệu tối giản và đồng nhất, tương phản với những bức tường trắng là đồ nội thất bằng gỗ tự nhiên. |
![]() |
| Mọi sinh hoạt của gia đình và công việc văn phòng bên trong ngôi nhà đều xoay quanh sân trong với giếng trời, hồ nước tiểu cảnh và cây xanh ở trung tâm. |
![]() ![]() |
| Sân trong là trục kết nối các không gian chính để mọi thành viên trong gia đình luôn có thể nhìn thấy và trò chuyện với nhau, từ đó tăng thêm sự gần gũi, gắn kết. |
![]() |
| Sân trong còn là nơi tương tác giữa hai bầu không khí trong nhà và ngoài trời, là nơi tiếp xúc trực tiếp với thiên nhiên, có thể làm dịu đi cái nóng oi bức của mùa hè hoặc làm giảm đi cái lạnh của những cơn gió mùa đông. |
![]() ![]() ![]() ![]() |
| Đây được coi là một trong những công trình kết hợp hài hòa giữa không gian sống và khu vực làm việc, vừa mang lại hiệu quả công việc, vừa không làm mất đi chức năng gắn kết, tạo sự thoải mái, thuận tiện cho sinh hoạt gia đình. |
![]() ![]() ![]() ![]() |
| Các không gian trong nhà luôn tràn ngập ánh sáng mặt trời. |





















