Ngôi nhà thông thoáng dành cho 4 thế hệ
Mong muốn của gia chủ là ngôi nhà sau cải tạo vừa có tính thẩm mỹ, vừa giúp tạo công năng nhiều hơn cho mọi người trong nhà sử dụng.
![]() |
| Ngôi nhà nằm trên mảnh đất rộng 160m2, ở đường Nguyễn Chí Thanh, Hà Nội. |
![]() |
| Khoảng sân vườn hình chữ L bao quanh ngôi nhà, khiến không gian thêm trong lành, dễ chịu. |
Bước chân qua cổng nhà là khoảng vườn xanh mát bao quanh hình chữ L. Phía trên cổng có cúc tần Ấn Độ rủ xuống giúp cổng nhà như một bức tranh.
![]() |
| Quanh khu vườn bố trí các bồn trồng trúc. |
![]() |
| Gạch thông gió và gạch ốp lát hoạt tiết nhấn nhá thêm cho cổng tường. |
Hai bên phía hàng rào tường được bố trí các bồn trồng trúc, vừa giúp ngăn cách không gian với những nhà xung quanh vừa tạo không gian xanh. Nhấn nhá thêm khu vực tường cổng là gạch thông gió và gạch ốp lát hoạ tiết.
![]() ![]() |
| Ngôi nhà 4 tầng sau cải tạo có thêm một phòng ngủ. |
Ban đầu, nhà gồm 5 phòng ngủ, 1 phòng thờ sau cải tạo thành 6 phòng ngủ, 1 phòng thờ.
![]() |
| Phòng khách hiện đại với bức tường sơn màu trắng khiến không gian như rộng hơn. |
![]() |
| Phòng bếp mở, với bức tranh treo tường đa màu sắc là điểm nhấn. |
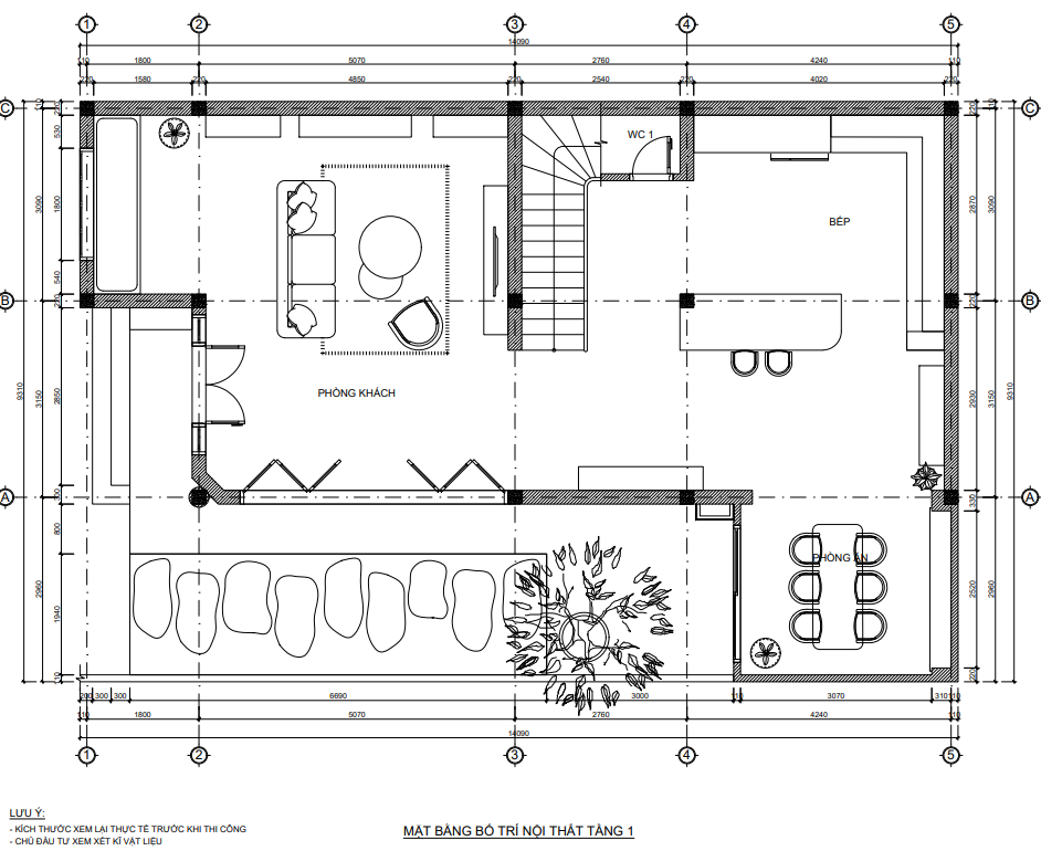
![]() |
| Mặt bằng tầng 1. |
Ở tầng 1, KTS phá dỡ bức tường bê tông ngăn cách phòng khách và bếp, khiến không gian bếp trở thành bếp mở.
![]() |
| Phòng bếp liên thông với phòng ăn. |
Phòng ăn kết nối với phòng bếp giúp không gian sinh hoạt của cả nhà càng được thông thoáng hơn.
![]() |
| Hệ cửa lùa khiến không gian thêm thoáng đãng. |
![]() |
| Cầu thang gỗ uốn cong nhẹ nhàng dẫn lên các tầng trên. |
Hệ cửa đối diện cầu thang được bịt lại thay bằng 2 hệ cửa lùa phần tường phòng khách và phòng ăn kết nối với sân được mở rộng khiến mọi không gian trong căn nhà đều tràn ngập ánh sáng, giao thông trở nên thuận lợi hơn.
Nội thất sang trọng kết hợp không gian xanh
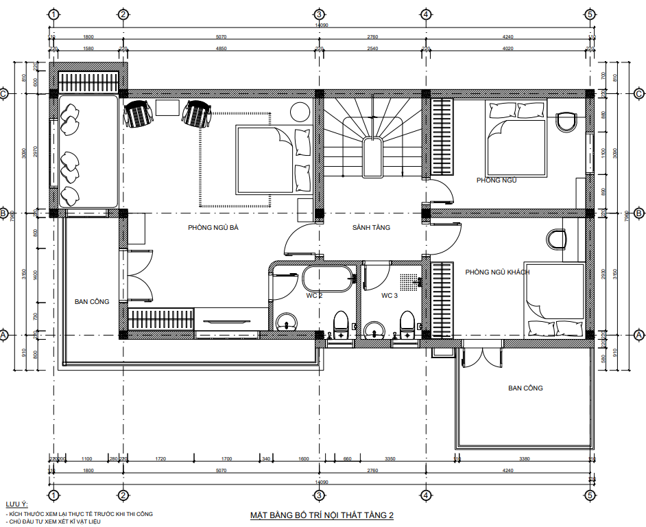
![]() |
| Mặt bằng tầng 2 ngôi nhà. |
Tầng hai gồm 3 phòng ngủ, phía phòng ngủ khách được cải tạo lại. KTS mở thêm cửa ra phần ban công, khiến không gian mỗi phòng đều được kết nối với thiên nhiên.
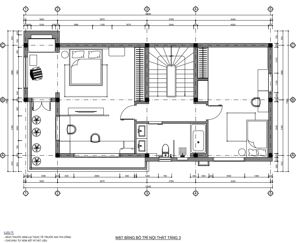
![]() |
| Mặt bằng tầng 3 ngôi nhà. |
![]() |
| Cửa sổ hình tròn là điểm nhấn ở phòng ngủ tầng 3. |
Lên đến tầng ba, nội thất được bố trí lại phù hợp với công năng sử dụng. KTS thay cửa sổ phòng ngủ chính từ hình chữ nhật thành hình tròn, tạo thành điểm nhấn cho kiến trúc căn nhà khi nhìn từ ngoài vào.
![]() |
| Mặt bằng tầng 4 ngôi nhà. |
Mặt bằng tầng bốn ban đầu gồm một phòng thờ, một phòng vệ sinh và khoảng sân rộng. Sau đó KTS tận dụng khoảng không gian của sân làm thành phòng ngủ kết nối với nhà vệ sinh cũ, tạo thành một căn phòng ngủ nhìn hướng ra sân, giúp tăng thêm công năng sử dụng cho căn nhà.
![]() |
| Màu trắng khiến không gian phòng vệ sinh thêm rộng rãi, hiện đại. |
![]() |
![]() |
| Gỗ Lim Nam Phi giúp cửa bền hơn trong quá trình sử dụng. |
Các vật liệu cơ bản được cải tạo như hệ cửa sử dụng gỗ Lim Nam Phi, màu sắc nhà sơn trắng, gỗ sáng màu tạo cảm giác sáng sủa, thoải mái cho gia chủ.
![]() |
| Nội thất phòng ngủ sử dụng gỗ công nghiệp. |
Một số phòng ngủ có màu sắc nhấn nhá bằng sơn nhấn một diện tường hoặc đồ nội thất sử dụng gỗ công nghiệp.
![]() |
| Ngôi nhà là tổ ấm nhỏ dành cho 4 thế hệ cùng sinh sống. |
Ngôi nhà được thi công và hoàn thiện trong gần 4 tháng, tổng chi phí khoảng 3 tỷ đồng.




















