Google News

Mê mẩn ngôi nhà nghỉ dưỡng cho gia đình 4 người

TPO - Đặc biệt chú trọng đến yếu tố chiếu sáng và thông gió, bộ ba mái hiên và cửa sổ giếng trời được lắp vào mái đầu hồi giúp ngôi nhà luôn thoáng đãng mát mẻ nhờ đó gia chủ gần như không cần sử dụng đến đèn chiếu sáng và quạt.
Mê mẩn ngôi nhà nghỉ dưỡng cho gia đình 4 người ảnh 1

Được cải tạo lại từ nơi nghỉ dưỡng cũ của gia chủ, ngôi nhà mái dốc hai tầng trên đỉnh đồi được thiết kế để lưu giữ những kỉ niệm. Ngôi nhà là sự pha trộn giữa cũ và mới, mặt trước nhìn ra sông, diện mạo hòa quyện với màu xanh của cảnh quan núi rừng, trở thành nơi nghỉ ngơi hoàn hảo cho gia đình 4 người.

Mê mẩn ngôi nhà nghỉ dưỡng cho gia đình 4 người ảnh 2
Mê mẩn ngôi nhà nghỉ dưỡng cho gia đình 4 người ảnh 3
Mê mẩn ngôi nhà nghỉ dưỡng cho gia đình 4 người ảnh 4

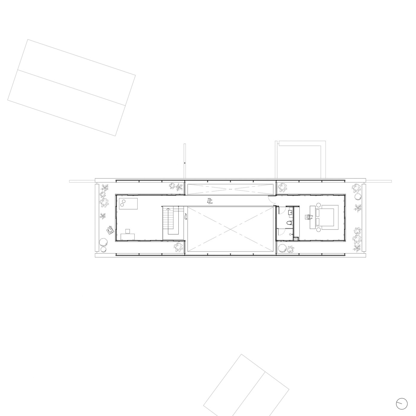
Tầng một là không gian liên thông của phòng khách, phòng ăn và nhà bếp cùng hai phòng ngủ người lớn ở hai đầu hồi. Phía trên là dãy hành lang dẫn tới các phòng ngủ nhìn ra thiên nhiên.

Mê mẩn ngôi nhà nghỉ dưỡng cho gia đình 4 người ảnh 5
Mê mẩn ngôi nhà nghỉ dưỡng cho gia đình 4 người ảnh 6
Mê mẩn ngôi nhà nghỉ dưỡng cho gia đình 4 người ảnh 7

Bản vẽ mặt cắt tổng thể và các tầng của ngôi nhà.

Mê mẩn ngôi nhà nghỉ dưỡng cho gia đình 4 người ảnh 8
Mê mẩn ngôi nhà nghỉ dưỡng cho gia đình 4 người ảnh 9

Hệ cửa kính lùa hai bên giúp lấy sáng tự nhiên và mở rộng tầm nhìn.

Mê mẩn ngôi nhà nghỉ dưỡng cho gia đình 4 người ảnh 10
Mê mẩn ngôi nhà nghỉ dưỡng cho gia đình 4 người ảnh 11

Trần nhà cao gấp đôi ở trung tâm giúp tăng cường thông gió chéo, giữ cho bên trong luôn mát mẻ.

Mê mẩn ngôi nhà nghỉ dưỡng cho gia đình 4 người ảnh 12
Mê mẩn ngôi nhà nghỉ dưỡng cho gia đình 4 người ảnh 13

Trần nhà được ốp gỗ tạo cảm giác ấm cúng và gọn gàng. Lựa chọn màu sắc chủ đạo là nâu gỗ, nâu sẫm và xám nhạt pha nâu giúp không gian mang vẻ hoài niệm đồng thời hài hòa với cảnh quan xung quanh.

Mê mẩn ngôi nhà nghỉ dưỡng cho gia đình 4 người ảnh 14
Mê mẩn ngôi nhà nghỉ dưỡng cho gia đình 4 người ảnh 15

Hệ tường và cửa kính giúp ngôi nhà luôn tràn ngập ánh sáng tự nhiên kể cả khi những tán cây lớn bao trùm cả ngôi nhà.

Mê mẩn ngôi nhà nghỉ dưỡng cho gia đình 4 người ảnh 16
Mê mẩn ngôi nhà nghỉ dưỡng cho gia đình 4 người ảnh 17

Phòng ngủ kiểu gác mái ở cuối phía nam của ngôi nhà đã được điều chỉnh để tránh ngột ngạt và thúc đẩy luồng không khí tốt.

Mê mẩn ngôi nhà nghỉ dưỡng cho gia đình 4 người ảnh 18

Giếng trời và mái hiên được mở rộng vừa để lấy sáng và đảm bảo thông khí vừa là không gian mở kết nối với thiên nhiên.