Google News Nhà ô thoáng của Việt Nam khiến báo Tây thích thú
TPO - Nhiều trang tin nước ngoài thể hiện sự thích thú khi ngôi nhà này sử dụng cấu trúc ô thoáng để các không gian tiện ích nhận được ánh sáng và thông gió tối đa, trong khi các khu vực sinh hoạt đảm bảo sự yên tĩnh và riêng tư với đủ tầm nhìn, ánh sáng và không khí.
  |
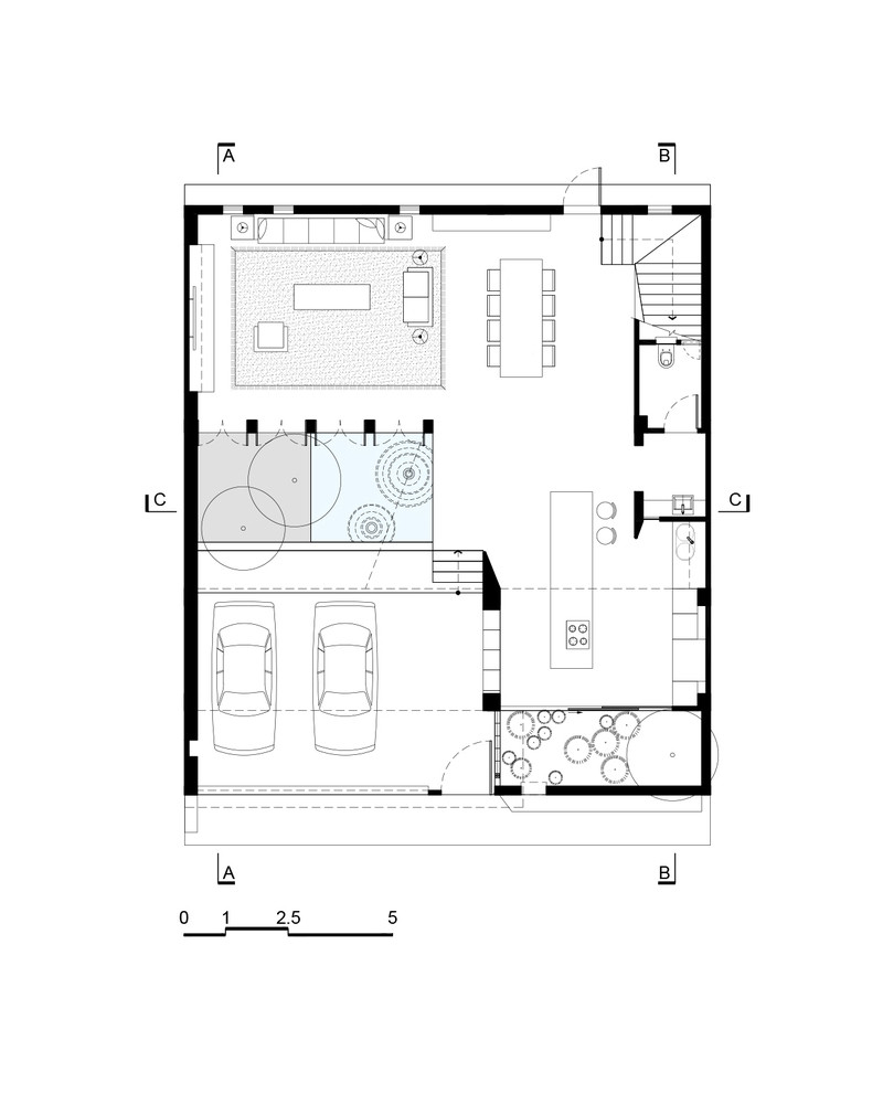
| Khu vực chung và riêng được kết nối thông qua các không gian mở. |
 |
| Với sự sắp xếp của kiến trúc sư, các không gian tiện ích nhận được ánh sáng và thông gió tối đa, trong khi các khu vực sinh hoạt đảm bảo sự yên tĩnh và riêng tư với đủ tầm nhìn, ánh sáng và không khí. |
  |
| Nội thất ngôi nhà được lấy cảm hứng từ kiến trúc truyền thống của Việt Nam thông qua việc sử dụng sân trong, ao cá, hàng hiên, cửa chớp và cây xanh. |
  |
| Các vật liệu tự nhiên như gỗ, đá kết hợp với bê tông tạo ra một bầu không khí nhiệt đới và thư giãn. |
 |
| Bằng cách nâng cao bể bơi, tầng trệt đã được mở ra cho các chức năng linh hoạt hơn. Ngoài ra, hồ bơi còn giúp hạ nhiệt khoảng sân rộng. |
  |
| Cấu trúc mặt tiền kéo dài 12,5m, bố trí lượng lớn ô thoáng để thông gió thủ công, tinh tế nhưng vẫn bao bọc được các không gian bên trong. |
  |
| Khi ngôi nhà hoàn thiện, nhiều tạp chí, trang tin nước ngoài liên tục đăng tải hình ảnh và thể hiện sự thích thú với lối kiến trúc này. |