Google News

Thiết kế biến cầu thang trở thành điểm nhấn ấn tượng

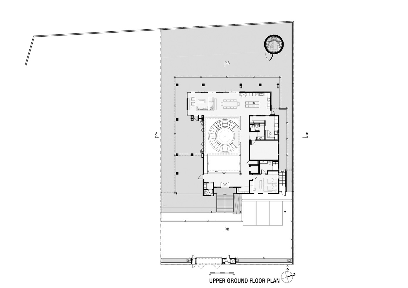
TPO - Điểm nhấn của căn biệt thự rộng 8640m vuông là chiếc cầu thang lớn hình xoắn ốc màu trắng ngọc trai ở trung tâm. Đẹp như một tác phẩm điêu khắc, cầu thang được thiết kế mềm mại và có phần phóng đại được nối liền với giếng trời.

    Căn biệt thự 3 tầng lấy màu chủ đạo là trắng ngọc trai, có vẻ ngoài đơn giản mang hơi hướng phong cách trang trại.
    Thiết kế tập trung các không gian công năng quanh chiếc cầu thang xoắn ốc ở trung tâm.
    Chiếc cầu thang được thiết kế với tỷ xích hùng vĩ hình xoắn ốc kéo dài ba tầng và nối liền với đỉnh là giếng trời hình tròn như bóng dáng của mặt trăng.
    Đường nét to lớn nhưng mềm mại và hoàn hảo như một tác phẩm điêu khắc thạch cao. Khi kết hợp với ánh sáng tán xạ qua giếng trời, màu trắng ngọc trai của cầu thang trở nên dịu nhẹ và bay bổng, tạo cảm giác như đây là "những nấc thang lên thiên đường".
    Giếng trời được thiết kế khá nhỏ để điều chỉnh lượng ánh sáng vừa phải cho khu trung tâm, nhờ những vòng tròn của cầu thang, ánh sáng được đưa đều khắp cho các khu vực lân cận.
    Bổ sung cho giếng trời trung tâm, các giếng trời phụ được sử dụng ở khu vực khác của biệt thự, kết hợp với các khe thông gió và màn nhôm đục lỗ để thông gió chéo, ánh sáng và không khí trong căn biệt thự luôn vừa vặn để chủ nhà thư giãn.