![]() |
| Ngôi nhà nằm ở một thành phố ven biển tỉnh Quảng Nam. |
Waves house - ngôi nhà dành cho 3 thế hệ sử dụng phương án vượt nhịp bằng công nghệ sàn rỗng hiện đại
Ngôi nhà cũ của chủ đầu tư được xây dựng đã lâu cùng với đó là thiết kế cách đây 30 năm không có tính khoa học và phù hợp với cuộc sống hiện đại. Thêm nữa, bố mẹ của chủ đầu tư đã già và có bệnh tật.
Do đó họ mong muốn có một ngôi nhà mới, một gian sống tốt hơn, phù hợp hơn với cuộc sống hiện tại cũng như tốt cho sức khoẻ của bố mẹ.
![]() |
| Ngôi nhà được thiết kế lấy cảm hứng từ những con sóng vỗ bờ. |
![]() |
| Phong cách thiết kế hiện đại, đơn giản, gần gũi với thiên nhiên. |
![]() |
| Cây xanh dày đặc tạo sức hút cho công trình. |
![]() |
| Phương án thiết kế vượt nhịp bằng công nghệ sàn rỗng được sử dụng cho ngôi nhà 3 tầng. |
Nhiệm vụ được đặt ra là thiết kế không gian đơn giản, hoàn toàn hiện đại. Nhiều ánh sáng và thoáng đãng, gần gũi với thiên nhiên những vẫn giữ được sự riêng tư cần thiết.
Do gia đình nhiều thành viên nên cũng cần nhiều không gian riêng và không gian sinh hoạt chung đủ rộng để có thể gắn kết các thành viên trong gia đình.
![]() |
| Hệ nhôm kính có độ cong lớn, có thể trượt qua lại để kết nối các không gian trong và ngoài nhà. |
![]() |
| Những góc cong mềm mại kết hợp với các vườn cây xanh tạo nên vẻ độc đáo cho ngôi nhà. |
Dự án này nằm ở một thành phố ven biển. Vì vậy ý tưởng thiết kế cũng được xuất phát từ những con sóng đang vỗ bờ.
Tuy nhiên từ ý tưởng để biến thành hiện thực là cả một quá trình khó khăn. Câu hỏi là làm sao để đảm bảo an toàn về mặt kết cấu cũng như đạt hiệu quả về thẩm mỹ.
KTS nghĩ đến phương án vượt nhịp bằng công nghệ sàn rỗng được đưa vào thiết kế chi tiết. Công nghệ này được ứng dụng nhiều trong những dự án công cộng. Ưu điểm của phương án này cho phép giải phóng không gian, tạo nên những không gian rộng lớn và tính thẩm mỹ cao mà vẫn an toàn.
Cùng với đó là khó khăn về hệ nhôm kính. Nó cần có độ cong lớn và phải trượt qua lại khi cần kết nối các không gian trong và ngoài nhà.
Ngôi nhà 3 tầng tiện nghi kết nối với không gian xanh
![]() |
| Phòng khách mang phong cách hiện đại, tối giản, và đầy đủ tiện nghi. |
![]() |
| Phòng khách, bếp đều mở ra với không gian xanh bên ngoài, tiếp xúc với ánh sáng và thông gió tự nhiên. |
![]() |
| Bàn ăn nằm ở trung tâm ngôi nhà. |
![]() |
| Phòng khách, bếp ăn không có vách ngăn, giúp kết nối không gian với nhau. |
![]() |
| Ở bên ngoài tầng 1 có hồ cá koi, giảm bớt bức xạ nhiệt. |
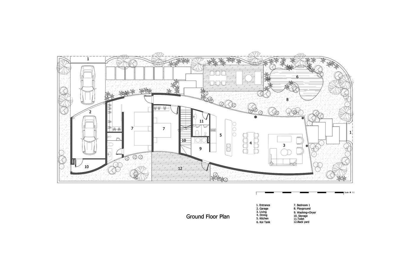
![]() |
| Mặt bằng tầng 1 ngôi nhà. |
Tầng 1 là không gian sinh hoạt chung bao gồm khách, bếp ăn. Tầng này còn có một phòng ngủ cho bố mẹ để họ tiện đi lại, một phòng ngủ cho khách, phòng giặt sấy, garage và các phòng kỹ thuật điện, nước.
Ở khu vực này, tất cả các không gian đều được tiếp xúc trực tiếp không gian sân vườn, tiếp xúc với ánh sáng và thông gió tự nhiên. KTS đã tính toán để những không gian này ít bị ảnh hưởng bởi các luồng khí nóng và nắng vào mùa hè.
Khoảng sân là nơi để cả gia đình có thể vui chơi và ăn uống cùng nhau, cũng như giảm bớt được diện tích bê tông hóa, từ đó giảm được bức xạ nhiệt. Việc kết nối giữa các không gian khách, bếp ăn và các phòng ngủ cùng với khoảng sân vườn trở nên quan trọng khi gia đình có người già và trẻ nhỏ.
![]() |
| Phòng ngủ tràn ngập ánh sáng tự nhiên do sử dụng cửa kính thay cho tường bê tông. |
![]() |
| Phòng tắm tiện nghi, sang trọng, phân biệt với phòng ngủ qua sàn lát gạch chứ không phải sàn gỗ. |
![]() |
| Bồn tắm tròn làm từ đá cẩm thạch có tầm nhìn ra sân vườn. |
![]() |
| Mặt bằng tầng 2. |
Tầng 2 là không gian phòng ngủ lớn bao gồm phòng thay đồ và vệ sinh, 1 phòng ngủ và 1 phòng sinh hoạt chung.
Trong những không gian này, KTS cũng mở rộng không gian bằng cách loại bỏ bớt tường bao che, thay vào đó là những mảng cửa lùa lớn để tất cả đều được hướng ra những khu vườn nhỏ. Do đó việc lấy gió và ánh sáng trở nên dễ dàng.
![]() |
| Không gian phòng ngủ hướng ra vườn, giúp lấy ánh sáng tự nhiên. |
![]() |
| Khoảng sân lớn dành cho vui chơi và tổ chức tiệc. |
![]() |
| Mặt bằng tầng 3. |
Tầng 3 là 2 phòng ngủ, 1 phòng thờ và khoảng sân lớn để có thể sử dụng lúc vui chơi và có tiệc. Những không gian này cũng đều hướng ra khu vườn. KTS muốn tạo ra cảm giác dù có ở bất cứ đâu cũng có thể chạm vào cây xanh và hít thở không khí trong lành.
Sau khi công trình xây xong một thời gian, những thành viên trong gia đình nhận xét rằng: “Từ khi chuyển đến đây, họ cảm thật thoải mái và giấc ngủ của họ thật sự ngon lành”.
![]() |
| Ngôi nhà mang lại cảm giác thoải mái và những giấc ngủ ngon cho các thành viên trong gia đình. |



















