![]() |
| Căn nhà nằm trong ngõ thuộc một khu tập thể cũ có nhiều thế hệ sinh sống. |
![]() |
| Gia chủ là người yêu thích sự hoài cổ nên mong muốn không gian sống mang sự tĩnh lặng. |
![]() |
| Vì thế màu sắc chủ đạo của ngôi nhà là màu nâu, cam đất và màu đỏ của ngói đất sét nung, cùng với tông màu ấm của gỗ. |
![]() |
| Không gian phòng ngủ được bố trí tối giản. |
![]() ![]() |
| Ngôi nhà được chăm chút từ những chi tiết nhỏ như sàn gạch, vải làm rèm, mành để thể hiện sự mộc mạc, sâu lắng. |
![]() ![]() |
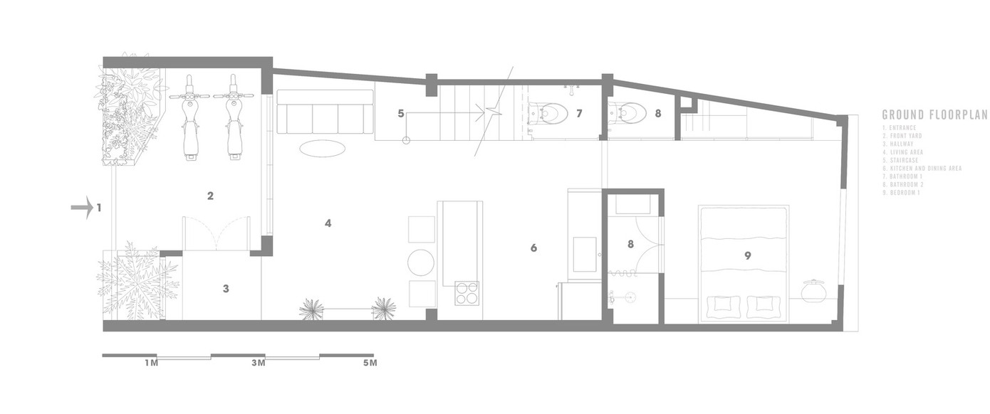
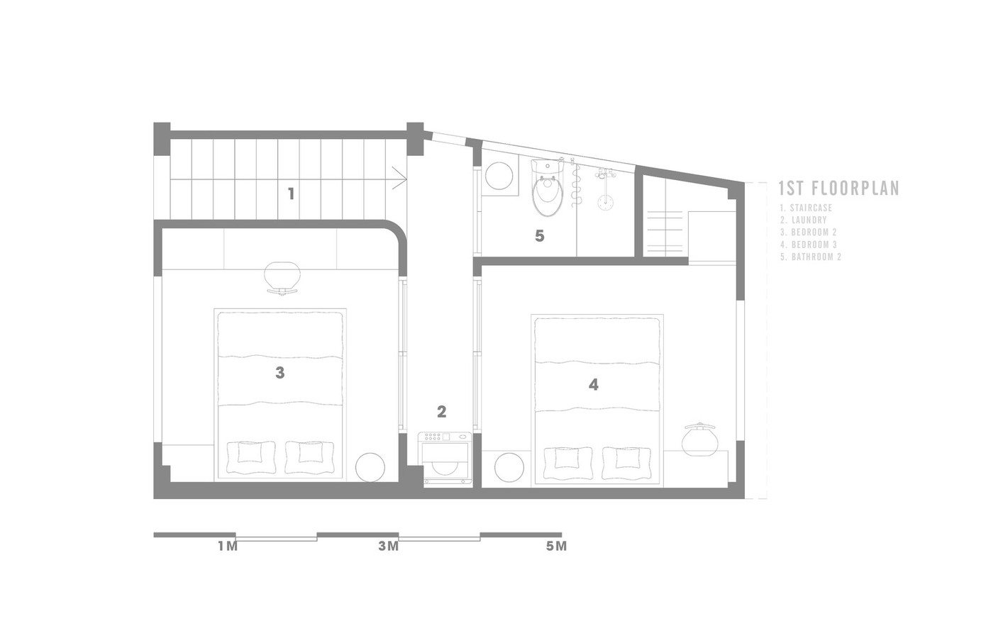
| Mặt cắt của ngôi nhà. |
![]() ![]() |
| Toàn bộ nguồn sáng trong nhà đến từ phần giếng trời giữa sân. Ở đây gia chủ có thể ngồi tắm nắng buổi sáng hay uống trà lúc hoàng hôn. |
![]() ![]() |
| Gia chủ bố trí thêm cây xanh và chậu sen ở các khu vực trống để con người gần gũi với thiên nhiên nhiều hơn. |











