Google News Ngỡ ngàng với kiến trúc của ngôi nhà xây trên thế đất xấu
TPO - Thiết kế độc đáo của ngôi nhà giúp lấy sáng, thông gió và tạo chiều sâu cho bếp và phòng ăn mặc dù thế đất rất xấu và hẹp.
 |
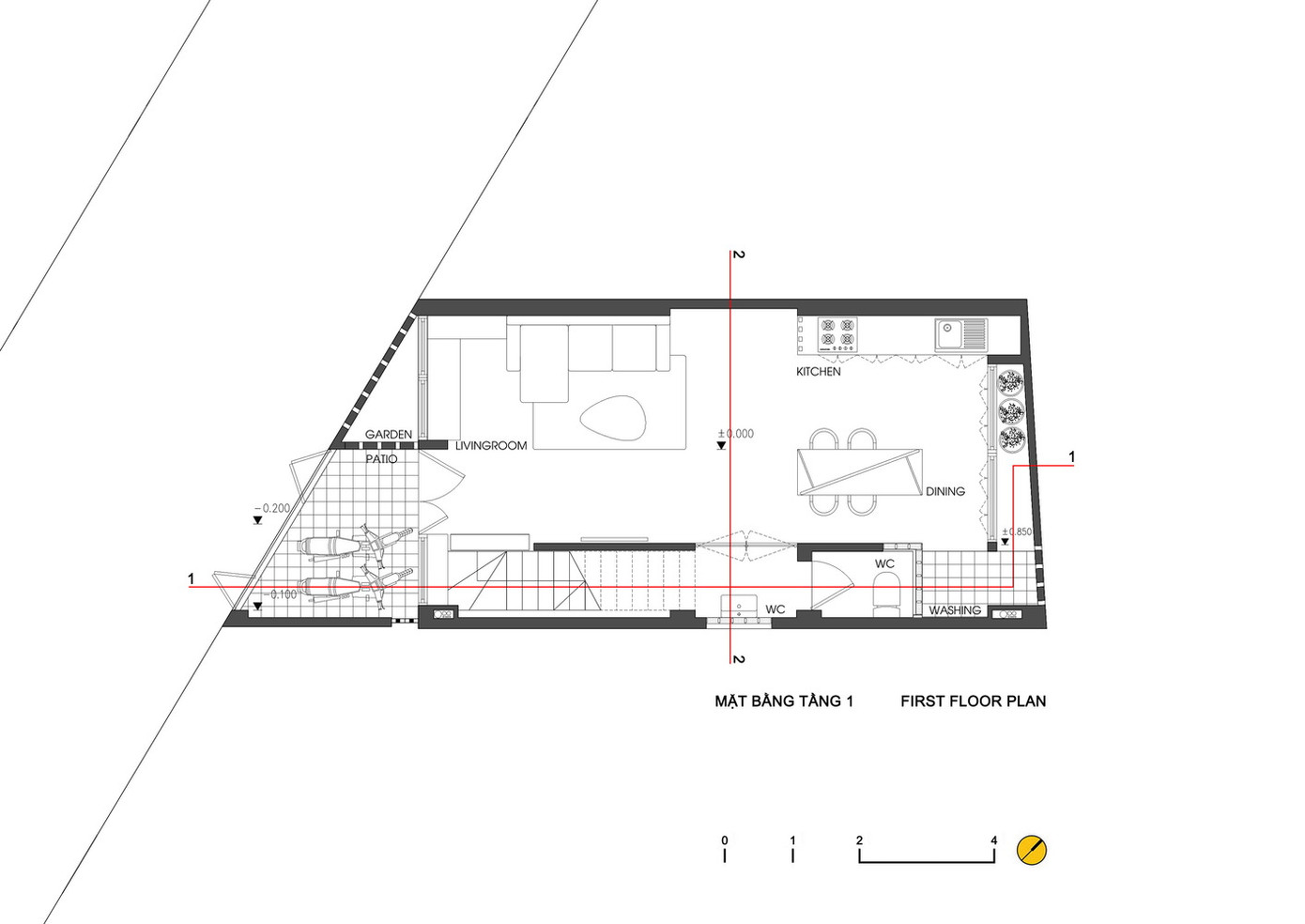
| Ngôi nhà này được xây dựng trên một thế đất xấu bị ngăn cách từ chỗ hẹp nhất của một khu đất rộng. Do đó, ô đất xây nhà có hình dạng xấu và rất chật chội. |
 |
| Do thế đất xấu nên ô đất gần như bị bỏ hoang cho đến khi một thanh niên mua lại với giá rẻ. |
 |
| Các kiến trúc sư đã xem xét rất nhiều giải pháp được thiết kế và cuối cùng họ chọn một khái niệm rất thiết thực và tối giản. |
  |
| Khoảng trống ở góc thon nhất phía trước khu đất, được sử dụng để trồng cây xanh tạo sự riêng tư cho không gian bên trong, ngăn cách với đường đi nhưng vẫn đảm bảo thông gió và ánh sáng tốt cho phòng khách và mặt tiền. |
  |
| Ở phía sau của mảnh đất, ở cạnh thon nhất, một khoảng trống được tạo ra và các kiến trúc sư làm một tấm bê tông được treo cách mặt đất 70 cm với tủ đựng đồ bên dưới và khu vườn ở trên. |
  |
| Các không gian như phòng ngủ, cầu thang, mái, nhà vệ sinh được thiết kế tối giản nhằm tối đa hóa không gian sử dụng và giảm thiểu chi phí xây dựng. |
 |
| Ngôi nhà được hoàn thiện trong niềm hân hoan của chủ nhà và tạo không khí hứng khởi mới cho cư dân đi ngang qua con đường trước nhà. |